Drafting and Design
2026 - Los Angeles, CA
Luxury container home with stacked volumes, courtyard fountain core, elevated living, and patios.
Table of contents
Overview
Aurelius is a custom container residence that translates industrial modularity into a clean, high-end architectural statement. Stacked container volumes create a strong, rectilinear form language, while exterior stairs, railings, and deliberate openings give the home a sculptural, gallery-like presence. The composition centers on an open-air courtyard, using void space as a luxury feature that brings light, air, and drama into the middle of the plan.
Client Type
Aurelius was envisioned for individuals or couples looking for a premium, design-forward alternative to conventional construction. The home supports a minimalist lifestyle without feeling small, pairing efficient private rooms with elevated entertaining areas and an outdoor courtyard experience that feels curated. It is suited to owners who value distinctive architecture, modular ingenuity, and a residence that reads as intentionally modern.
Project Scope
The Aurelius project includes the complete design of a multi-level modular container residence focused on bold form, functional separation, and a courtyard-centered outdoor living experience. The architectural program includes:
• Container-based modular structure arranged as stacked and offset volumes
• Central open-air courtyard with focal water feature as the main organizing element
• Ground level configured for access, utility, and vehicle accommodation with an adjacent garage volume
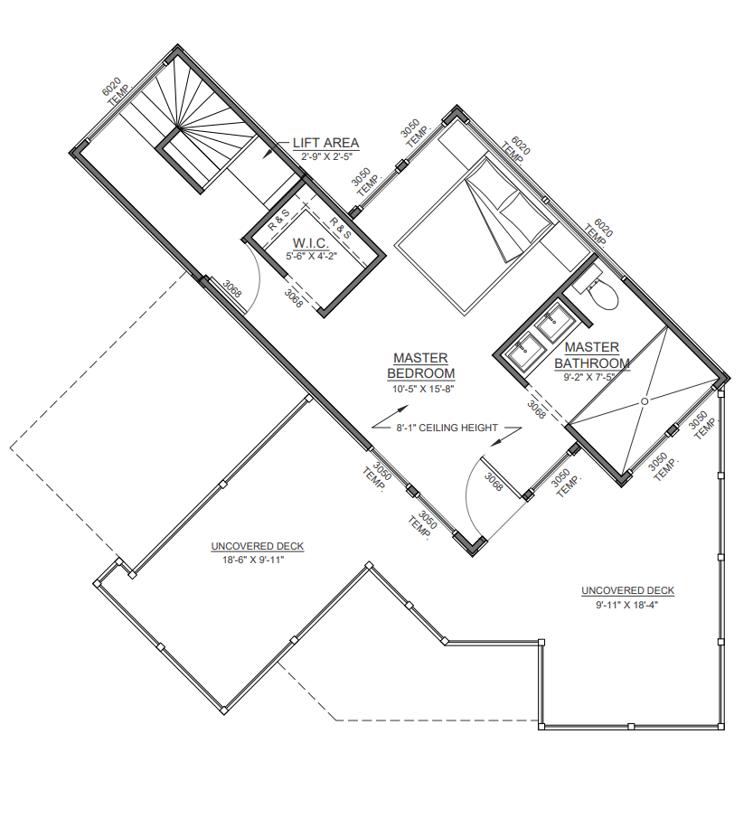
• Upper-level private sleeping quarters with dedicated bathrooms and integrated storage
• An elevated kitchen and dining level designed for gathering, daylight, and views into the courtyard
• Exterior stair circulation that frames the courtyard and emphasizes indoor-outdoor movement
• Patios and overhangs that expand usable outdoor space while providing shade and weather protection
• A durable, low-maintenance exterior aligned with container construction and long-term performance
Challenges Addressed
The design had to deliver a luxury-feeling experience within the constraints of container dimensions and a compact overall footprint. Key considerations included:
• Making narrow modular interiors feel open and comfortable
• Creating privacy for bedrooms while keeping circulation simple and intuitive
• Using the courtyard as a true centerpiece rather than leftover space
• Balancing the visual weight of stacked container masses with a central void
• Coordinating exterior stairs, landings, and railings so they feel intentional, not temporary
• Integrating vehicle and access needs without compromising the architectural composition
Goals Achieved
Aurelius provides a refined, courtyard-driven container home that feels purposeful and premium:
✔️ Distinct container-modern identity with strong, clean architectural massing
✔️ Courtyard and water feature that elevate the home’s experience and sense of place
✔️ Clear zoning between private suites and elevated communal living spaces
✔️ Efficient planning that maximizes usability within modular constraints
✔️ Indoor-outdoor circulation that turns movement through the home into an architectural feature
✔️ Durable exterior approach suited to low-maintenance, long-term living




AutoCad
Aurelius reframes modular container living as a luxury architectural experience. By organizing the home around a central courtyard and water feature, the design creates light, air, and focus at its core while maintaining clear separation between private suites and elevated communal spaces. The result is bold, efficient, and unmistakably intentional.










