Drafting and Design
2026 - Boulder, CO
Two-story Boulder ADU over garage with vaulted roof, exterior stair, skylight, and full permit set.
Table of contents
Overview
Auricore is a detached two-story garage and ADU designed as a compact, high-performance accessory building that feels intentionally architectural rather than secondary. A simple gable roof and vaulted upper level keep the massing clean, while an exterior stair creates a private, self-contained ADU experience. The plan is built to satisfy Boulder permitting needs through site-specific placement, solar compliance documentation, and engineering-ready drawing standards.
Client Type
Auricore was envisioned for owners who want a premium, code-compliant ADU above a functional garage, with a strong emphasis on city approval, climate performance, and practical livability. The program fits those who prefer electric-only systems, efficient space planning, and clear separation between garage and living areas. It is also ideal for property owners replacing an existing structure under an active permit and needing a corrected, permit-eligible plan set.
Project Scope
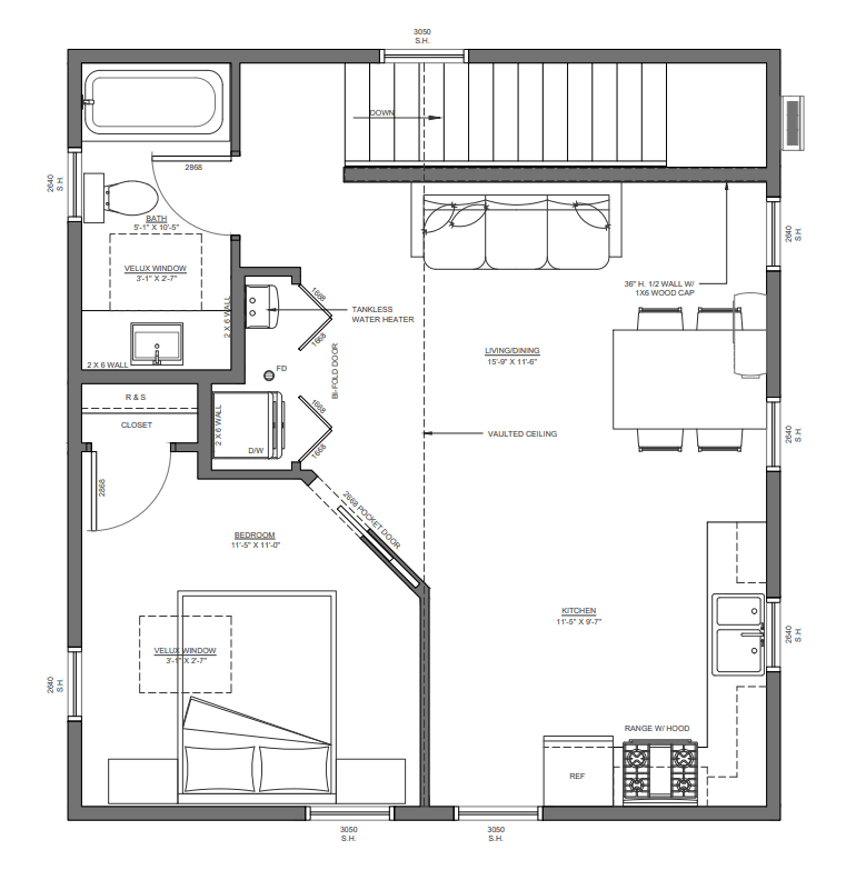
The Auricore project includes the complete drafting and modification of a permit-ready two-story detached garage with an ADU above, designed to replace an existing structure and meet City of Boulder requirements. The architectural program includes:
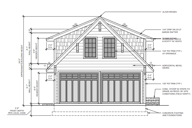
• New detached 2-story structure with a 24' x 26' footprint and an overall height near 24'
• Ground-level 2-car garage planned at approximately 20' x 20', updated to two individual garage doors centered with a small separation
• Upper-level ADU with 1 bedroom, 1 bathroom, and a compact electric-only kitchen
• Closed bedroom and bathroom zones for privacy, with an open living and kitchen area kept separate from sleeping spaces
• Vaulted upper ceiling and roof coordination, including scissor truss intent where applicable
• Operable Velux skylight positioned over the bedroom within the vaulted roof
• Exterior-only access to the ADU via an exterior staircase, with no internal garage connection
• South elevation updates including a centered 5' French door and a double-hung window at the southwest corner
• Full plan set deliverables including floor plans, elevations, cross sections, foundation plan, roof plan, and full MEP layouts
• Mechanical direction using mini split systems with separate thermostats for upper and lower levels
• Water heating direction using a tankless water heater serving the upper living area
• Site plan coordination based on ILC and boundary documentation, including shifting the structure west and south to meet easement and setback requirements
• Boulder-specific requirements including solar shadow or solar exposure documentation and electric vehicle charging provisions where required
• Engineering-friendly drawing format with a dedicated 4" x 4" stamp area and code-aligned documentation
Challenges Addressed
The design had to convert a purchased online plan concept into a fully permit-eligible Boulder submittal while preserving a simple, buildable form. Key considerations included:
• Reworking site placement to satisfy easements and setbacks without changing the essential footprint logic
• Maintaining a simple gable form while integrating a vaulted ceiling and an operable skylight cleanly
• Ensuring electric-only documentation is consistent across plans, notes, and MEP layouts
• Designing exterior-only ADU access that feels intentional and meets functional safety expectations
• Coordinating façade openings and garage door changes without disrupting elevation balance
• Addressing Boulder solar requirements and EV charging provisions as part of a complete approval package
• Producing sheets that are engineer-ready and not dependent on copyrighted PDF plan overlays
Goals Achieved
Auricore delivers a permit-focused, climate-ready ADU and garage package with refined functionality:
✔️ Compact 24' x 26' two-story form with a vaulted ADU level and simple gable roof
✔️ Exterior-only ADU access for clear separation between garage and living space
✔️ Electric-only systems documented cleanly with mini split HVAC and tankless water heating direction
✔️ Operable Velux skylight integrated into the vaulted roof for daylight and ventilation
✔️ Site plan placement designed to meet Boulder setbacks and easement constraints
✔️ Full construction set scope prepared for engineering coordination, solar requirements, and permitting




AutoCad
Auricore refines a garage-and-ADU concept into a Boulder-ready permit package by aligning the design with site setbacks, solar requirements, and engineering standards. A simple gable form supports a vaulted upper level with an operable Velux skylight, while exterior-only access keeps the ADU private. Electric-only systems, mini splits, and a complete plan set make it buildable and review-friendly.










