Drafting and Design
2026 - Iron County, UT
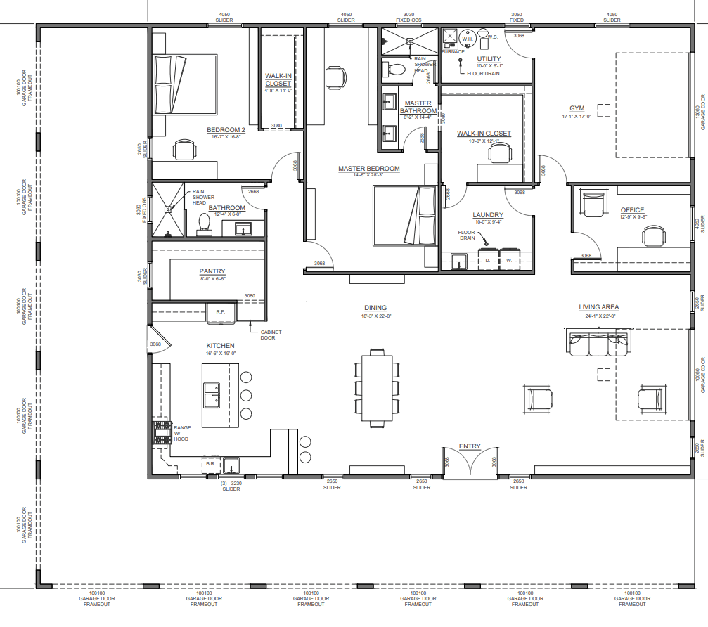
50x60 prefab shell with residential-ready slab, future 2-bed program, roll-up access, and site plan.
Table of contents
Overview
Aurumstead is a permit-ready prefabricated metal building concept designed to function immediately as an enclosed carport and storage shell while being fully prepared for a future residential conversion. The structure is planned at 50' x 60' and is positioned on an undeveloped two-acre parcel with an emphasis on long-term adaptability, symmetrical street-facing presence, and a foundation strategy that avoids future demolition. The design intent is to make the slab, penetrations, and site layout “residential-ready” from day one, even before utilities are installed.
Client Type
Aurumstead was envisioned for owners who want an elevated, future-proof approach to a phased build, starting with a high-utility metal shell and transitioning into a comfortable single-level residence later. The program fits a household that values practical planning, clean building geometry, and the confidence that today’s foundation decisions will not create expensive rework later. It is also ideal for buyers who want a clear path through county review now, with a smooth conversion path when utilities and interior build-out are ready.
Project Scope
The Aurumstead project includes the complete drafting and planning of a prefabricated 50' x 60' enclosed metal building with a foundation and site plan that anticipates a future full residential dwelling conversion without slab cutting or re-pouring. The architectural program includes:
• Overall 50' x 60' prefabricated metal shell planned for permit-ready submission in Iron County
• Phase 1 use as enclosed carport, storage, and recreational shell with multiple roll-up doors for RV and vehicle access
• Central pedestrian entry door on the east-facing front elevation with a symmetrical window layout along the street side
• Awnings on select sides coordinated with slab and foundation extents, particularly on the south and east sides
• Site orientation planning with the lot facing east, front elevation facing the street, and primary roll-up door orientation prioritized to the north
• Conceptual future single-level residential interior program planned now to inform slab, wet walls, and utility routing, including:
• Two bedrooms with a primary suite that includes a minimum 10' x 10' walk-in closet
• Laundry located inside the primary walk-in closet
• Two bathrooms with walk-in showers only and a primary bath featuring dual vanity and upgraded shower features
• Office targeted around 15' x 15'
• Gym aligned with a roll-up door for indoor and outdoor functionality with floor outlets
• Fully open kitchen, living, and dining with an island-facing living room, a main sink in the island, and a secondary prep or bar sink along a wall
• Floor outlet requests in living and gym areas and a no-stairs, single-level future layout
• Foundation and slab planning that meets residential code standards while supporting a non-dwelling initial permit phase
• Utility anticipation for future plumbing penetrations, drain lines, water routing, and electrical conduit paths without requiring immediate utility installation
• Permit-ready construction set deliverables including cover sheet, site plan using the provided plat map, foundation and slab plan, structural coordination notes for prefab specs, and a conceptual future residential floor plan
Challenges Addressed
The design had to support a phased-use structure while ensuring the slab and site plan decisions remain valid and code-aligned for future residential occupancy. Key considerations included:
• Designing a residential-grade foundation for a structure initially permitted as a non-dwelling shell
• Planning plumbing and electrical routes early so future conversion does not require saw-cutting or slab demolition
• Coordinating roll-up door locations, pedestrian entry, and symmetrical front windows while maintaining a clean street-facing elevation
• Integrating awning extents into slab edges so later additions do not require rework
• Aligning the gym zone with a roll-up door to support true indoor and outdoor use
• Developing a conceptual residential layout that is detailed enough to guide slab planning while remaining flexible for later refinement
• Addressing a site with no active utilities by anticipating tie-in zones and future service paths without overcommitting to immediate infrastructure
Goals Achieved
Aurumstead provides a high-end, future-ready approach to a phased metal building project:
✔️ Permit-ready 50' x 60' shell planned for immediate utility use and future residential conversion
✔️ Residential-grade foundation and slab strategy designed to eliminate future demolition or saw-cutting
✔️ Site plan orientation and door strategy aligned with access, RV function, and street-facing presentation
✔️ Conceptual residential program integrated early to guide wet zones, penetrations, and utility planning
✔️ Clear deliverables and coordination notes designed to work cleanly with prefab manufacturer specifications
✔️ A phased path that preserves today’s investment and supports a smoother residential build-out later


Aurumstead is designed to make a phased metal-building project feel premium and financially smart by future-proofing the foundation from the start. A residential-grade slab, utility pathway planning, and a conceptual two-bedroom layout guide wet zones and penetrations so the structure can convert later without cutting concrete. The result is permit-ready now and conversion-ready later.










