Drafting and Design
2026 - Belton MI
Ranch new build with 3-car garage, deck, revised bath/laundry layout, and unfinished basement egress plan.

Overview
Brasshaven is a ranch-style new build planned to feel straightforward and livable while still delivering a complete, permit-ready set for a Missouri site. The design combines a clean main-level layout with an attached three-car garage, a back deck sized for everyday outdoor use, and an unfinished basement planned for future flexibility with proper egress. Revisions focus on practical detailing—cleaner front elevation geometry, tighter utility spaces, and bathroom reconfiguration for better function.
Client Type
Brasshaven was envisioned for homeowners who want a traditional, easy-to-build ranch plan with a few targeted upgrades that improve daily use without overcomplicating construction. The program fits clients who care about clear, contractor-friendly drawings and want to lock in the key layout decisions quickly—bathroom function, laundry/pantry efficiency, and a deck and garage that work in real life. It’s ideal for owners planning future basement use and wanting code-aligned egress planning from the start.
Project Scope
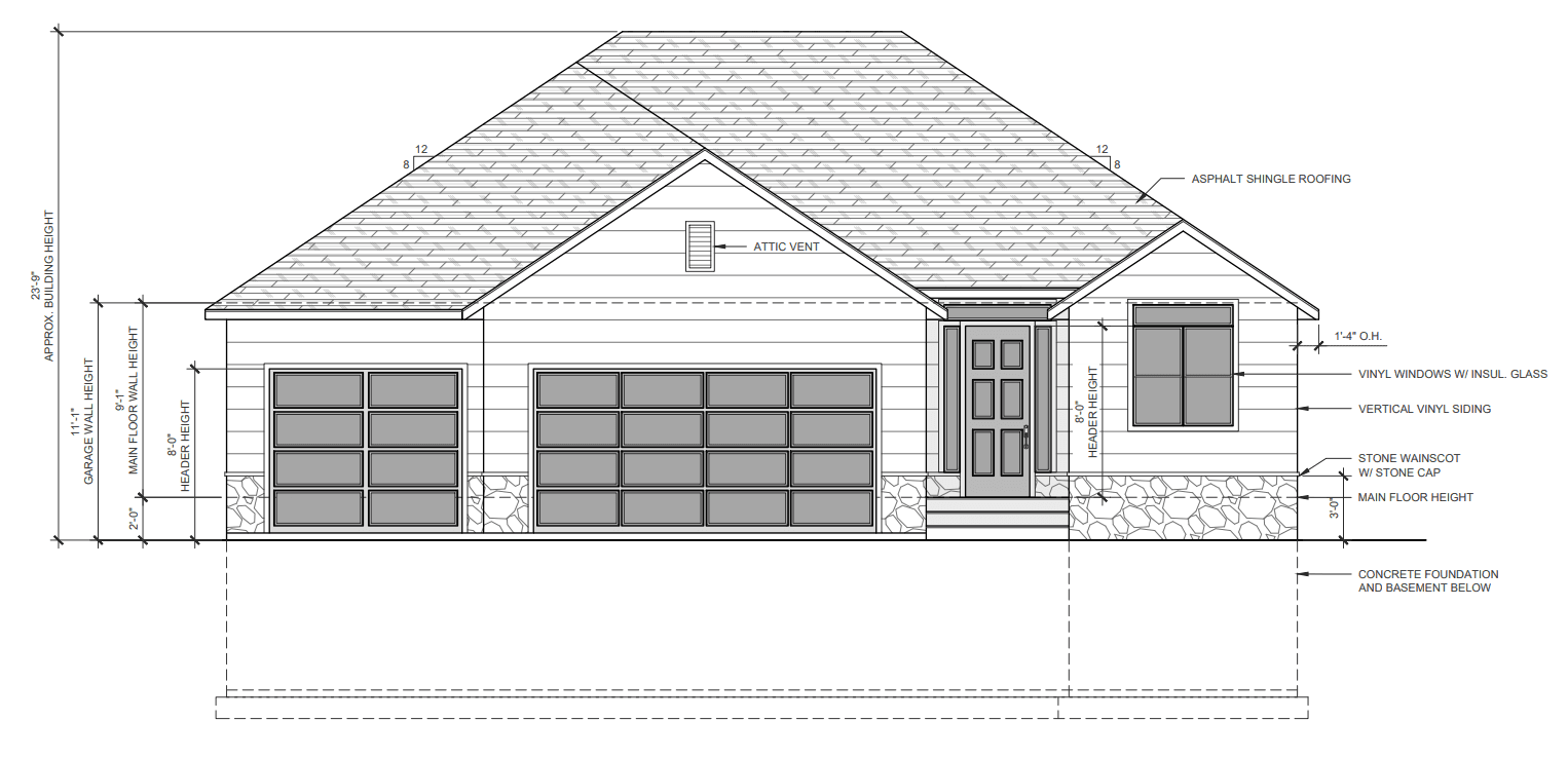
The Brasshaven project includes drafting and revision of a roughly 1,640 sq. ft. ranch-style home with a three-car garage, deck, and unfinished basement, delivered as a full construction plan set. The architectural program includes:
• Bathroom rework (swap shower/toilet relationship, keep a dedicated toilet room, improve overall function)
• Laundry + pantry optimization (remove sink, side-by-side washer/dryer, reduce laundry footprint and reclaim space for pantry/storage)
• Exterior elevation cleanup (replace curved transom/vents with rectangular elements; adjust stone to a lower wainscot with siding above)
• Back deck design with defined width/depth and stair placement limited to the right side for clearer site flow
• Unfinished basement planning with two egress windows plus full plan-set deliverables (site plan, floor plans, dimensions, elevations, sections, roof plan; engineering coordinated later)
Challenges Addressed
The design had to keep a simple ranch feel while resolving practical revisions that affect both appearance and buildability. Key considerations included:
• Making bathroom swaps work cleanly within the existing footprint while preserving privacy and circulation
• Tightening the laundry/mechanical logic without losing storage and pantry capacity
• Removing curved elevation accents so the façade reads clean, consistent, and easier to detail in the field
• Coordinating basement egress intent early so future use remains feasible and code-aligned
• Keeping deck and stair placement functional without creating awkward exterior access or elevation conflicts
Goals Achieved
Brasshaven delivers a build-ready ranch concept with the highest-impact revisions resolved early:
✔️ Cleaner bathroom functionality with improved fixture relationships and maintained privacy
✔️ More efficient utility planning through a simplified laundry and stronger pantry/storage layout
✔️ Simplified front elevation with rectangular openings and a clearer stone-to-siding transition
✔️ Basement future-proofing via egress planning that supports later finishing potential
✔️ Full construction-document scope defined for production and engineering coordination



AutoCad
Brasshaven is a practical ranch-style new build that focuses on the changes that matter most for comfort and constructability: a cleaner front elevation, a smarter bath layout, and a simplified laundry/pantry strategy. With a defined back deck and an unfinished basement planned with two egress windows for future flexibility, the project is positioned for a clear, permit-ready plan set and smooth contractor coordination, with engineering added as needed.









