Drafting and Design
2026 - Phoenix, AZ
Full redraw from scans with basement removal, slab conversion, 2-story coordination, permit-ready CAD set.

Overview
Cairnshade is a full architectural redraw and structural conversion project that transforms a legacy basement-based design into a modern two-story slab-on-grade residence for Maricopa County review. With no original CAD available, the plan set is rebuilt from scanned sheets and client redlines, then coordinated tightly with structural engineering to ensure the new load paths, floor-to-floor relationships, and elevations all align for permitting. The result is an editable, permit-ready package designed to move cleanly from concept corrections into engineered issuance.
Client Type
Cairnshade was envisioned for owners who need a true “from-scratch” reconstruction of existing plans, combined with major structural changes that require engineering coordination and careful cross-sheet consistency. The project fits clients who already have a baseline design they want to preserve in spirit, but need it reworked to meet new foundation and configuration goals. It is ideal for those who value editable CAD ownership, disciplined revision handling, and a permit-ready outcome built for county submittal.
Project Scope
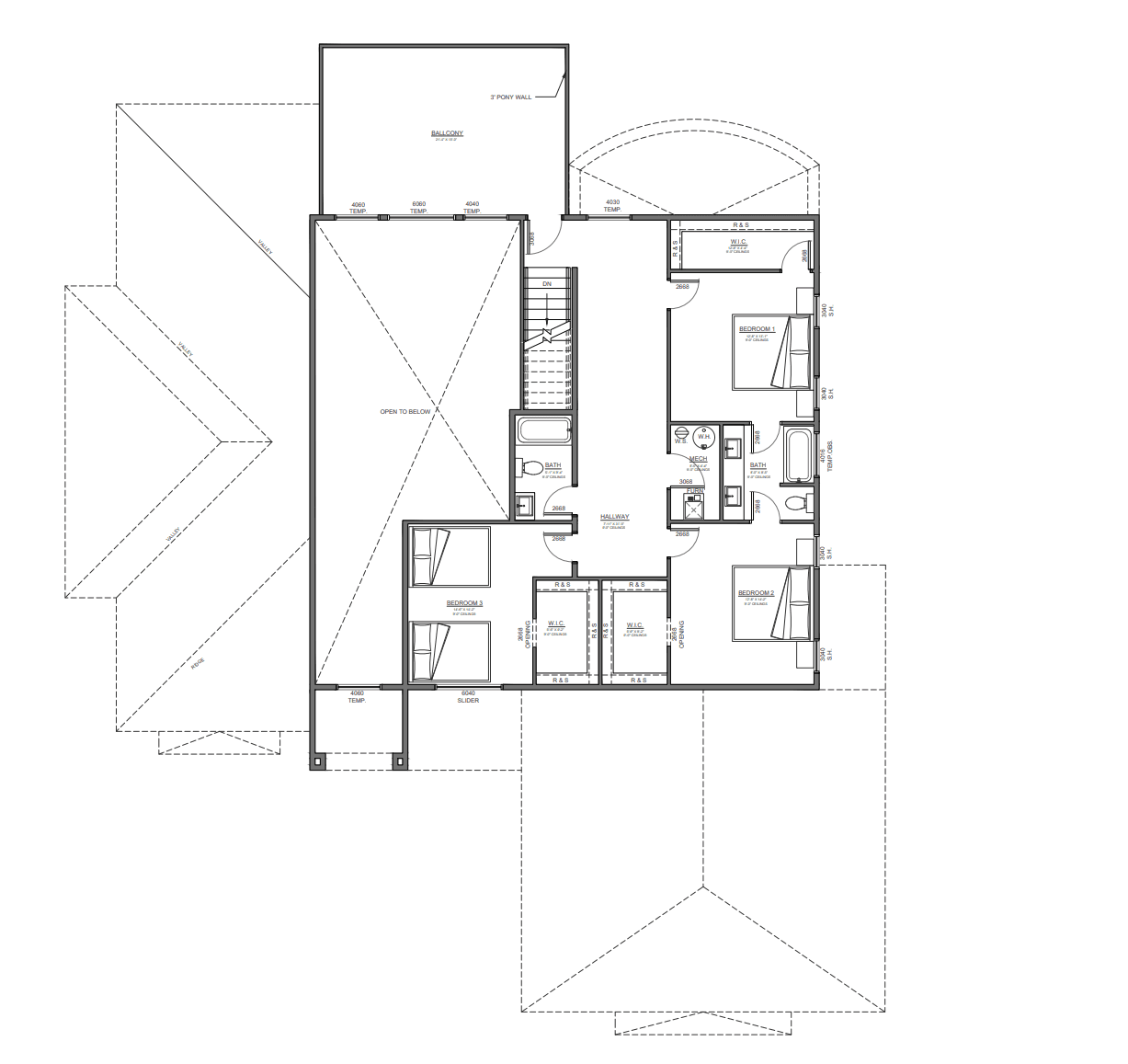
The Cairnshade project includes a complete architectural redraw from scanned plans, integration of client redlines, and coordinated documentation to support a basement-to-slab conversion and two-story configuration. The architectural program includes:
• Full CAD rebuild from non-editable scanned plans with a clean sheet set, title blocks, scales, and layer standards
• Basement elimination and redesign to a slab-on-grade ground floor, coordinated to a two-story vertical alignment
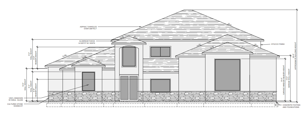
• Permit-ready architectural sheets: dimensioned floor plans, architectural foundation plan, roof plan, elevations, and at least one primary building section
• General architectural notes and coordination callouts prepared for plan review clarity and structural reference
• Deliverables packaged as PDF permit set plus native DWG files for client ownership and future edits
Challenges Addressed
The design had to translate legacy non-editable drawings into a coordinated, engineer-ready permit set while executing major structural and foundation changes. Key considerations included:
• Recreating accurate geometry and dimensions from scanned documents without relying on original CAD
• Removing the basement while preserving functional layout intent and resolving the slab-on-grade redesign cleanly
• Maintaining consistent floor-to-floor heights, stair logic, and vertical alignment across a true two-story configuration
• Updating elevations and section relationships to reflect new finished floor levels and removed basement exposure
• Coordinating architectural sheets with structural engineering so load-bearing elements, wall locations, and heights remain synchronized
Goals Achieved
Cairnshade delivers a clean, coordinated redraw-and-convert plan set that supports permitting and engineering issuance:
✔️ Fully rebuilt, editable CAD plan set derived from scanned originals and client redlines
✔️ Basement-to-slab conversion documented with clear foundation intent and vertical alignment
✔️ Complete architectural sheet package (plans, elevations, sections, roof) formatted for permit review
✔️ Tight architectural-to-structural coordination pathway to reduce conflicts and rework during stamping
✔️ Final deliverables structured for county submission plus long-term client ownership of DWG files




AutoCad
Cairnshade turns scanned, non-editable legacy plans into a coordinated, permit-ready architectural set while executing a major structural shift: removing the basement and converting the home to a two-story slab-on-grade design. By rebuilding the sheets in clean, editable CAD and aligning floor plans, elevations, sections, and roof geometry with engineering requirements, the project reduces conflicts and supports a smoother Maricopa County submission and stamped issuance process.









