Drafting and Design
2026 - Columbia, SC
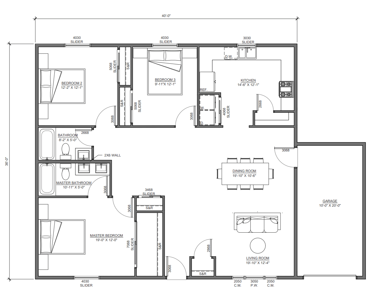
Panelized 36'×36' home—open core, precise upper level, permit‑ready and fabrication‑smart.
Table of contents
Overview
Caldrin is a panelized, two‑level residence refined around a true 36'×36' footprint. An open ground floor pairs with a precise upper level, all detailed for clean fabrication, permitting, and future reuse. Walls align for panel efficiency, and elevations translate modern prefab cues into a clear, buildable set.
Client Type
Caldrin suits builders and owners who want prefabrication speed without compromising design logic. It prioritizes simple repeats, disciplined dimensions, and a documentation package that serves permitting, engineering review, and panel takeoffs alike.
Project Scope
The Caldrin project delivers a complete permit‑ready plan set for a panelized home. The architectural program includes:
Ground floor with open living, dining, and kitchen, sink under window, optimized cabinet runs
Upper level with primary suite, second bath, walk‑in storage, and coordinated stair opening
Exterior elevations derived from modern prefab references
36'×36' overall, with vertically aligned walls for panel fabrication
Sheets: cover, fully dimensioned floor plans, elevations, 1–2 sections, roof plan, and door‑window schedule
CAD and PDF deliverables with clean layers and consistent line weights
Challenges Addressed
Expanding from 36'×23' to a true 36'×36' without “stretching” the plan
Aligning structure and partitions for repeatable panelization
Coordinating stair, roof, and floor‑to‑floor relationships in section
Meeting the needs of permitting, engineering, and fabrication with one set
Goals Achieved
✔️ A disciplined 36'×36' layout optimized for panelized assembly
✔️ Clear, fabrication‑friendly elevations, sections, and dimensions
✔️ Coordinated kitchen, stair, and openings that reduce field conflict
✔️ One plan set serving permit review, engineering, and manufacturer pricing
✔️ CAD standards that streamline edits and future adaptations


AutoCad
Caldrin converts modern prefab intent into a crisp 36'×36' plan set built for speed and certainty. With aligned walls, coordinated stair and roof logic, and fully dimensioned sheets, it minimizes RFIs and supports permitting, engineering, and panel pricing. Clean CAD standards enable quick iteration and future reuse without rework.










