Drafting and Design
2026 - Indianapolis, IN
Architect-stamped church renovation redraft with main + basement plans and permit-ready coordination.
Table of contents
Overview
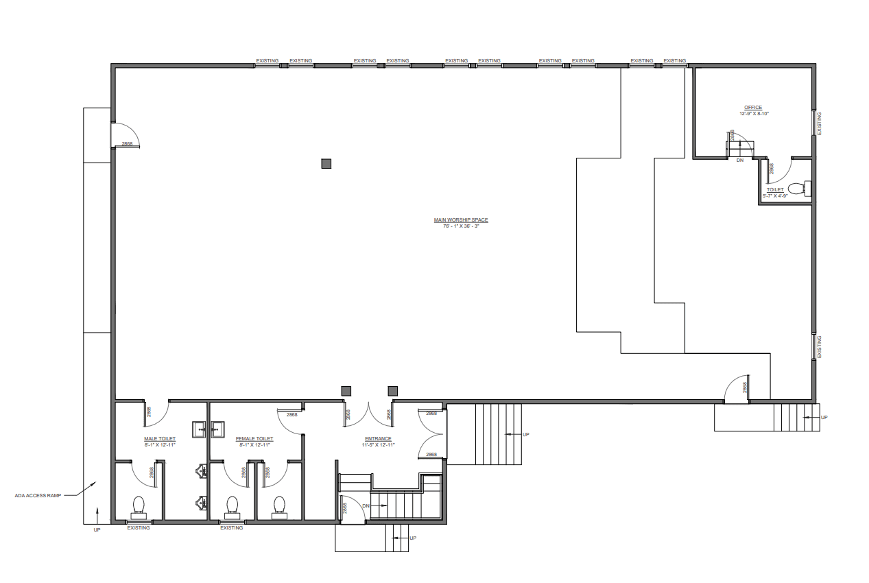
Cathedralis is a full-building church renovation redrafting effort designed to convert existing conceptual drawings into a clean, permit-ready commercial plan set. The building is a one-story assembly space with a full basement, totaling approximately 6,654 square feet, and the work focuses on aligning all sheets to code, jurisdictional requirements, and professional drafting standards. The result is a coordinated set prepared specifically for city submission and approval.
Client Type
Cathedralis was envisioned for organizations and facility owners who need a professional, architect-stamped plan set to legally renovate an existing assembly-use building. The project supports stakeholders who already have design intent and preliminary layouts, but require a compliant set that holds up under plan review, life-safety scrutiny, and municipal standards. It is ideal for groups that want a single coordinated deliverable that can be used for permitting, bidding, and renovation execution.
Project Scope
The Cathedralis project includes complete architectural redrafting and coordination for an existing church facility to produce a code-compliant, architect-stamped plan set suitable for commercial permitting. The architectural program includes:
• Full redrafting from scratch of existing and proposed plans to professional permit-ready standards
• Commercial occupancy and assembly-use documentation aligned to jurisdiction requirements
• One-story building with a full basement, totaling approximately 6,654 square feet
• Existing and proposed floor plans for both the main level and basement
• Life-safety considerations appropriate to an assembly occupancy, coordinated into the architectural set
• Door, wall, and room layout coordination to ensure consistency across sheets
• Cover sheet and project data required for city submission, including building use and occupancy designation
• Coordination of previously prepared MEP drawings into the architectural set for alignment and consistency
• Licensed architect review and stamp for permit submission
• Support for jurisdictional review comments and revisions as needed during the permitting cycle
Challenges Addressed
The design effort had to translate non-professional preliminary drawings into a city-ready commercial package while managing the stricter requirements of an assembly occupancy. Key considerations included:
• Redrawing and standardizing plans that were not originally drafted to permit conventions
• Coordinating main level and basement layouts into one consistent architectural narrative
• Incorporating life-safety and occupancy documentation in a way that supports plan review
• Aligning architectural sheets with MEP reference layouts without assuming engineering stamps are included
• Producing a set that is clear enough for city review and contractor pricing, not just concept presentation
• Creating a stamped architectural deliverable while keeping additional engineering scopes clearly separated
Goals Achieved
Cathedralis delivers a professional, jurisdiction-ready plan set built for commercial approval:
✔️ Complete architectural redraft to permit standards based on existing reference materials
✔️ Clear documentation of assembly occupancy and building use for plan review
✔️ Coordinated main-floor and basement plans across a full-building scope
✔️ Life-safety integration aligned with church and assembly requirements
✔️ Architect-stamped deliverable suitable for city submission and approval
✔️ A clean foundation for contractor bidding, renovation scheduling, and revision handling



AutoCad
Cathedralis turns preliminary church renovation drawings into a code-compliant, architect-stamped commercial plan set ready for city submission. By redrafting all sheets to permit standards, coordinating main and basement plans, and aligning architectural and MEP references for consistency, the package supports smoother plan review and clearer contractor bidding for a full-building renovation.










