Drafting and Design
2022 - Columbia, MD
4,296 sf new build with revised basement, full elevations, code-correct sills, and scaled site plan.
Table of contents
Overview
Chrysophrase is a large-scale residential new build designed as a refined, detail-driven home with a full basement program and a strong emphasis on complete exterior documentation. The design balances generous square footage with code-aware window and sill-height coordination, while incorporating practical exterior elements like a basement stair canopy and site-responsive placement. The result is a plan set built to read cleanly in review, build accurately in the field, and stay consistent across floor plans, sections, and all four elevations.
Client Type
Chrysophrase was envisioned for owners who want a comprehensive, highly coordinated residential plan set with clear elevations, buildable basement planning, and site plan accuracy. The project fits a household prioritizing finished-quality living spaces alongside functional service areas, with an expectation that details like window heights, basement wall build-outs, and drainage provisions are resolved before construction. It is ideal for clients who value precision, revision discipline, and permit-ready completeness.
Project Scope
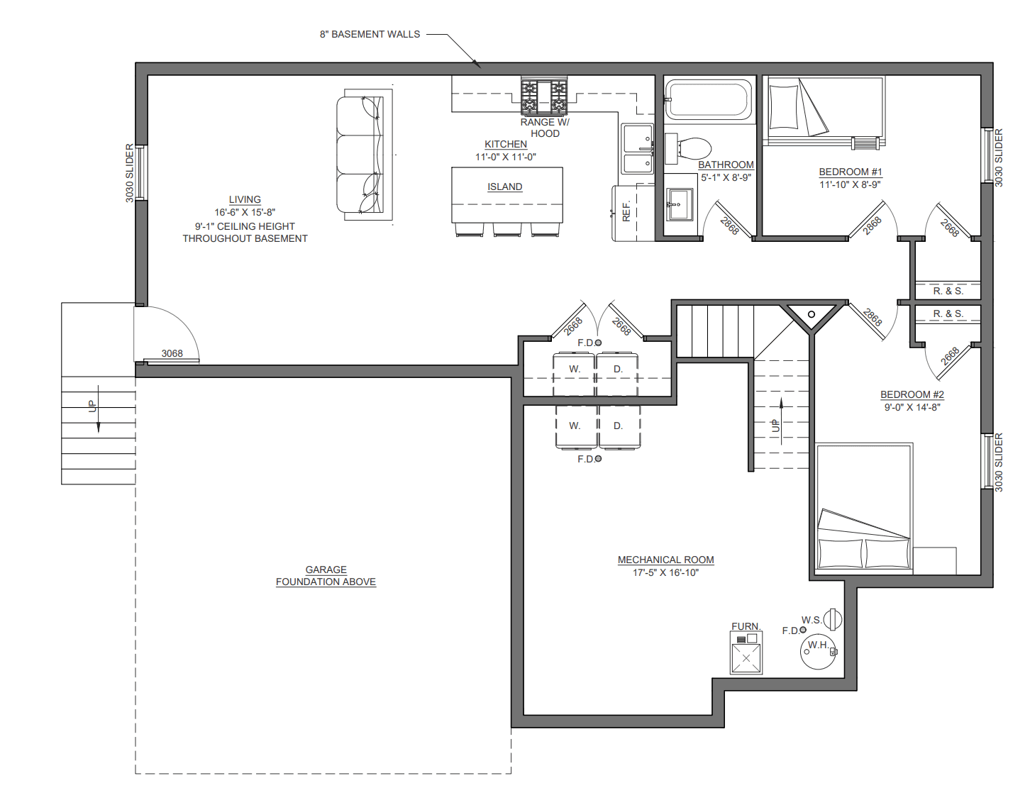
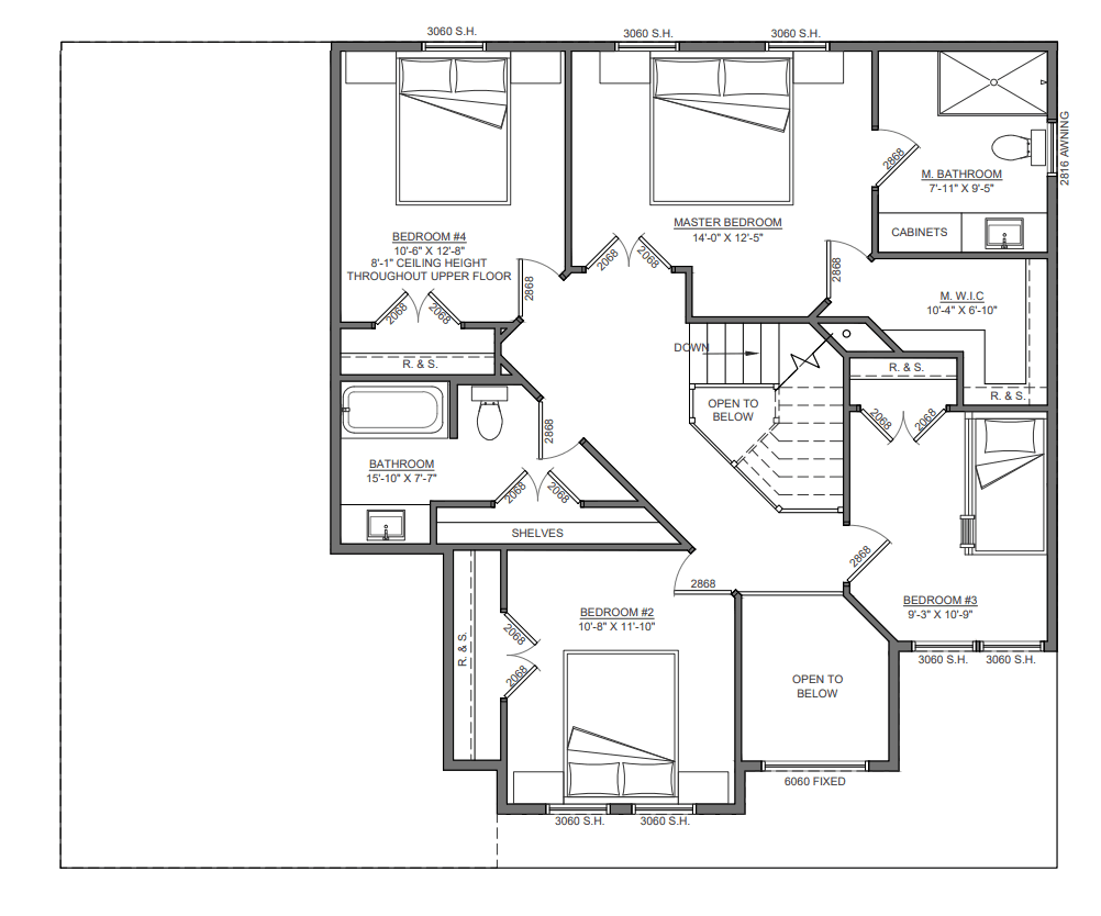
The Chrysophrase project includes a full architectural drafting package for a residential new build of approximately 4,296 square feet, including basement coordination, complete elevation development, and a scaled site plan based on survey information. The architectural program includes:
• Fully dimensioned floor plan set with room labels, door and window sizing, wall types, and stair coordination
• Basement plan coordination including program revisions such as swapping kitchen and basement locations within the basement layout
• Basement wall development updated to furred-in walls for buildability and finish coordination
• Exterior elevation set completion including front, rear, and both side elevations, aligned to the established front elevation reference
• Elevation data showing roof slopes, ridge heights, overhangs, soffits, fascia, and exterior material indications
• Building sections and details illustrating wall assemblies, floor-to-ceiling heights, and roof structure intent
• Window and sill-height coordination to meet code requirements, including lowering sill heights to be at or below 44 inches where needed
• Basement stair exterior feature coordination including an awning or canopy element on the side elevation
• Floor drain coordination at the concrete slab location at the bottom of the basement stairs for functional drainage
• Representational electrical plan including outlets, switches, lighting, and panel location
• Representational plumbing plan including fixture placement and diagrammatic routing intent
• Basic HVAC and mechanical layout showing equipment locations and supply/return intent
• Foundation and slab plan drafting coordinated with structural engineering requirements as applicable
• Scaled site plan based on the provided survey including property lines, building footprint, setbacks, driveway and access, north arrow, and legend
Challenges Addressed
The design had to resolve basement program changes and code-driven detailing while maintaining consistency across elevations, sections, and the site plan. Key considerations included:
• Coordinating a revised basement layout without disrupting overall vertical alignment and stair relationships
• Updating basement wall conditions to furred-in assemblies while keeping dimensions and clearances accurate
• Ensuring sill heights comply with code limits while preserving exterior elevation proportion and window intent
• Adding a basement stair canopy element that reads intentional in elevation and functions correctly in the field
• Integrating a floor drain at the base of stairs without creating conflicts with slab notes or routing logic
• Completing all elevations so they match the plan set and satisfy submittal expectations
• Maintaining tight cross-sheet coordination so revisions do not introduce inconsistencies between plans, sections, and site placement
Goals Achieved
Chrysophrase delivers a complete, revision-aware residential plan set focused on coordination and buildability:
✔️ Fully documented floor plans with clear dimensions, openings, and wall types
✔️ Basement program coordination with furred-in wall updates for finished-quality construction
✔️ All four elevations completed and aligned for clean review and consistent exterior intent
✔️ Code-aware sill-height corrections integrated without compromising overall design cohesion
✔️ Functional basement stair detailing including canopy coverage and drainage provisions
✔️ Scaled site plan framework prepared from survey data with setbacks and access clarity
100 character short description
4,296 sf new build with revised basement, full elevations, code-correct sills, and scaled site plan.
350 character conclusion
Chrysophrase is a fully coordinated residential plan set built around completeness and constructability. With a revised basement program, furred-in wall updates, code-correct window sill heights, and all four elevations aligned to the floor plans, the package supports clean permitting and accurate field execution. Site plan and detail coordination keep the design consistent from lot lines to sections.





AutoCad
Chrysophrase is a fully coordinated residential plan set built around completeness and constructability. With a revised basement program, furred-in wall updates, code-correct window sill heights, and all four elevations aligned to the floor plans, the package supports clean permitting and accurate field execution. Site plan and detail coordination keep the design consistent from lot lines to sections.










