Drafting and Design
2026 - Houston, TX
Repeatable 1,400–1,460 sf subdivision plan with elevation options, mirrored versions, and garage MEP.
Table of contents
Overview
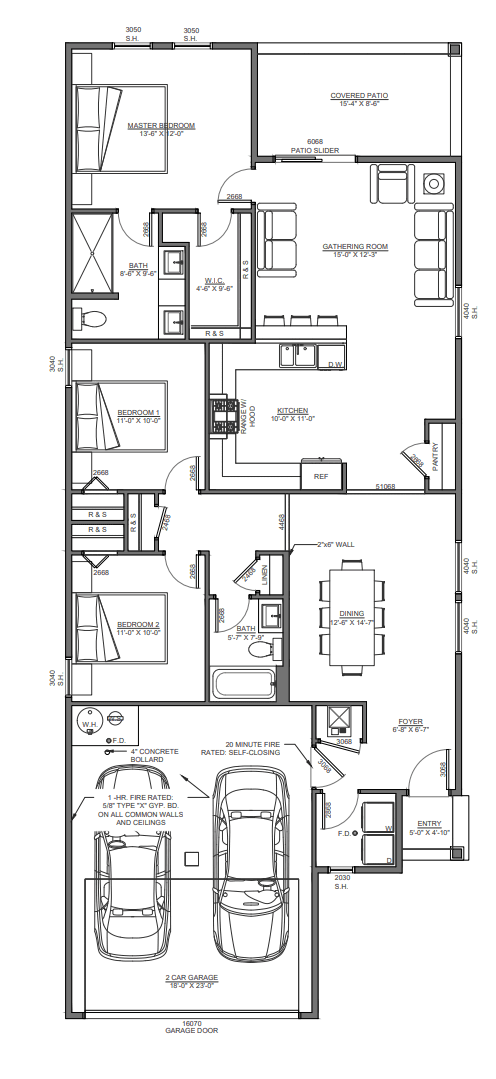
Crownford is a cost-efficient, repeatable single-family home design developed for subdivision use, built to balance clean curb appeal with production-ready simplicity. The concept is based on a proven reference plan and refined for fast repetition across multiple lots, with controlled exterior variation to avoid a copy-paste streetscape. The design approach focuses on simple roof geometry, builder-friendly framing, and practical MEP placement to keep construction costs predictable.
Client Type
Crownford was envisioned for builders and development teams seeking a marketable, permit-ready base model that can be reused across a multi-lot neighborhood with minimal rework. The plan supports broad buyer appeal through an open living core and efficient bedroom zoning, while keeping details intentionally restrained for production pacing. It fits teams who value speed, consistency, and the ability to mirror and lightly re-skin elevations without redesigning the floor plan.
Project Scope
The Crownford project includes the full architectural drafting of a reusable single-family home plan intended for repeated deployment across a 20-lot subdivision, with limited elevation and orientation variations for visual diversity. The architectural program includes:
• Single-family detached dwelling plan based on a reference model of approximately 1,400 to 1,460 heated and cooled square feet
• Attached garage with key service functions placed inside the garage to reduce conditioned square footage and simplify access
• Open-concept living, dining, and kitchen area sized for broad buyer appeal and efficient circulation
• Bedroom arrangement optimized for practical plumbing and HVAC runs and simplified interior wall framing
• Logical door swings and circulation paths reviewed for buildability and reduced change-order risk
• Multiple front elevation options created from the same base plan, labeled as distinct options for subdivision variety
• Minor elevation variation strategies including roof form shifts, garage orientation changes, and subtle façade proportion adjustments
• Left-swing and right-swing mirrored floor plan versions for alternating placement on adjacent lots
• Full permit-ready construction document set suitable for local submissions and contractor bidding, including:
• Cover sheet and code summary
• Dimensioned floor plan set
• Roof plan
• Exterior elevations for each elevation option
• Building sections and wall sections as required
• Door and window schedules
• Notes and details needed for residential permitting
• Structural coordination readiness for engineering review and stamp where required
• Electrical and mechanical coordination intent focused on efficient routing and cost-effective service layouts
Challenges Addressed
The design had to remain economical and repeatable while still offering enough exterior variety to feel intentional at the neighborhood scale. Key considerations included:
• Keeping rooflines simple while still producing distinct front elevation options
• Creating mirrored plan versions without breaking garage, entry, and streetside logic
• Placing mechanical, laundry, and service zones to reduce conditioned space cost and improve service access
• Maintaining broad-market interior appeal while minimizing structural complexity and framing waste
• Producing a permit-ready document set that supports repeated jurisdictional use with minimal edits
• Managing elevation variation without introducing expensive façade treatments or high-detail trim packages
Goals Achieved
Crownford provides a clean, scalable subdivision home model designed for speed and consistency:
✔️ Efficient heated-area footprint with a simple, production-ready plan layout
✔️ Open living core with practical bedroom zoning for buyer appeal and easy build sequencing
✔️ Garage-located service strategy that reduces conditioned space costs and improves maintenance access
✔️ Multiple front elevation options that create variety without changing the base plan
✔️ Mirrored left-swing and right-swing versions to support alternating lot placement
✔️ Permit-ready construction set prepared for repeated use, bidding, and fast execution



AutoCad
Crownford is a subdivision-ready base model designed to be built repeatedly without feeling repetitive. By pairing a clean, efficient floor plan with controlled elevation options and mirrored left and right versions, the design supports neighborhood variety while keeping construction simple and affordable. Garage-based service placement and permit-ready documentation keep production moving.










