Drafting and Design
2025 - Columbiana, OH
A modern farmhouse refined for real life—bright, durable, and smartly organized.
Table of contents
Overview
Elaro is a modern farmhouse residence that blends clean, timeless lines with purposeful functionality. A two-story form above an unfinished basement anchors the design, while board-and-batten and vinyl siding create a balanced, low-maintenance exterior. Inside, a light-forward great room, kitchen, and dining core prioritize everyday living and effortless gathering. The plan refines privacy and circulation with thoughtful edits to the suite, foyer, and upper hall, delivering calm, clarity, and comfort throughout.
Client Type
Elaro suits households seeking a contemporary farmhouse character with practical, family-ready planning. It supports daily routines and occasional entertaining, offering a bright central hub, flexible work or play spaces, and quiet, well-separated bedrooms for restorative downtime.
Project Scope
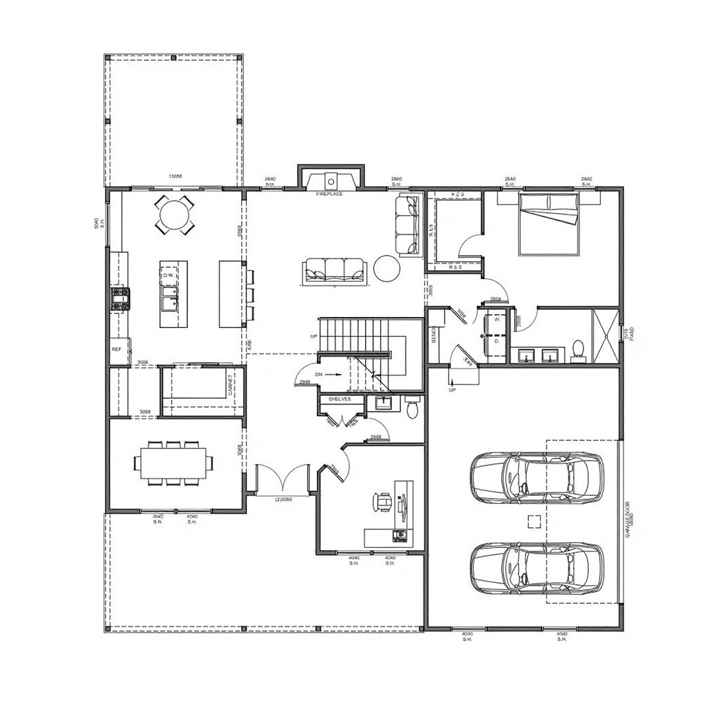
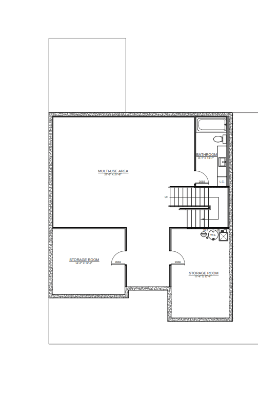
The Elaro project includes the full design of a two-level home with unfinished basement and durable, easy-care finishes. The architectural program includes:
Open-concept great room, kitchen, and dining with two-island configuration and walk-in pantry
Refined primary suite with right-sized bath and a single, efficient walk-in closet
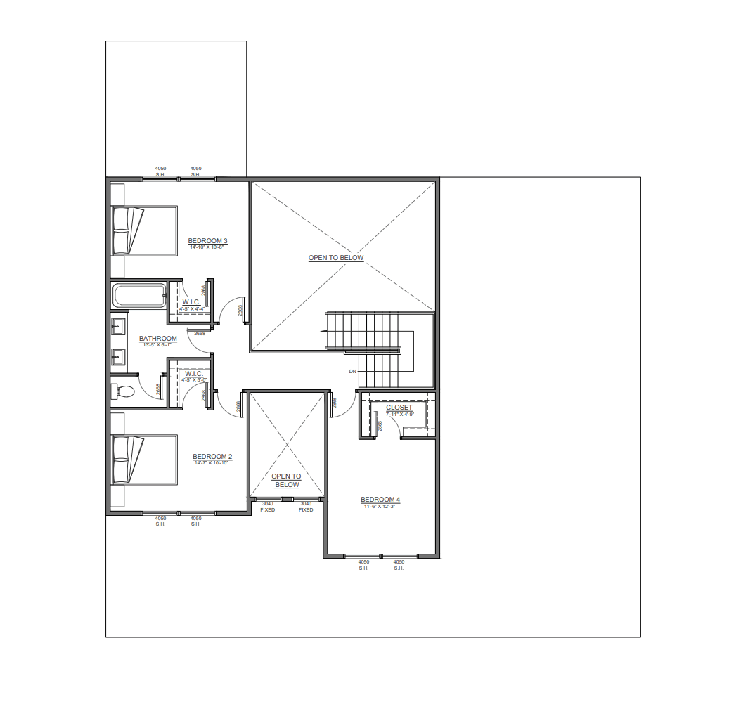
Three additional bedrooms with an optimized shared bathroom layout
Dedicated main-level office/study
Covered front porch and a centered fireplace for everyday comfort
Side-entry, attached 2-car garage with bonus room above for play or flex use
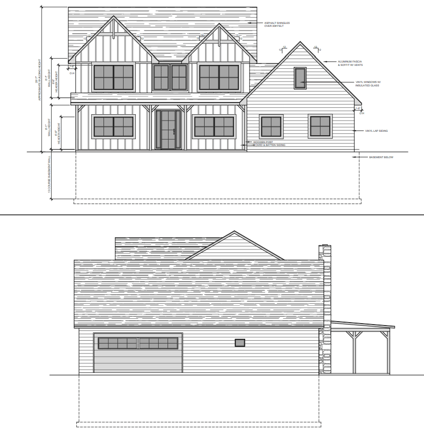
Pre-manufactured truss roof with asphalt shingles and 2x6 exterior walls at 9-foot heights
Site plan, elevations, sections, roof and slab edge plans, and coordinated MEPs, with engineering by a licensed Ohio engineer and permit-ready documentation
Challenges Addressed
Preserving openness while increasing privacy at the foyer catwalk and upper hall
Right-sizing the primary suite for utility without excess
Maintaining circulation clarity while accommodating work-from-home and family life
Ensuring durable, cost-conscious materials without compromising character
Goals Achieved
✔️ Contemporary farmhouse expression with balanced, low-maintenance materials
✔️ Bright central living core ideal for everyday life and entertaining
✔️ Zoned bedroom layout supporting quiet retreat
✔️ Clear, practical circulation from entry to private areas
✔️ Document set tailored for smooth permitting and construction
✔️ Structural clarity with truss framing and straightforward detailing





AutoCad
Elaro distills modern farmhouse living into a bright, durable, and thoughtfully edited plan. With an open central core, flexible bonus space, and privacy-conscious sleeping zones, it pairs day-to-day practicality with inviting character. Streamlined detailing and permit-ready documentation support a confident path from vision to build.










