Drafting and Design
2026 - Springfield, MO
Upscale single-story ranch with open great room, library, 3-bed zoning, garage, and future wellness link.

Overview
Elmwarden is a custom single-story ranch residence designed for long-term comfort, accessibility, and a warm upscale feel on a spacious rural lot. The concept avoids a rigid box by using a more flowing footprint and a multi-plane roofline to create depth and a welcoming entry sequence. Inside, the home emphasizes natural light and rear-facing views, with an open great-room core and direct outdoor connections to a future wellness-focused hot tub or hydrotherapy structure.
Client Type
Elmwarden was envisioned for homeowners planning to age in place who want an inviting, timeless home that feels elegant without reading as ultra-modern or barn-inspired. The layout supports everyday ease with no stairs, wide circulation, and intuitive zoning, while still offering dedicated quiet spaces like an office and a library. It suits those who value light-filled gathering areas, private bedroom wings, and a property-oriented lifestyle with outdoor living and future amenity planning.
Project Scope
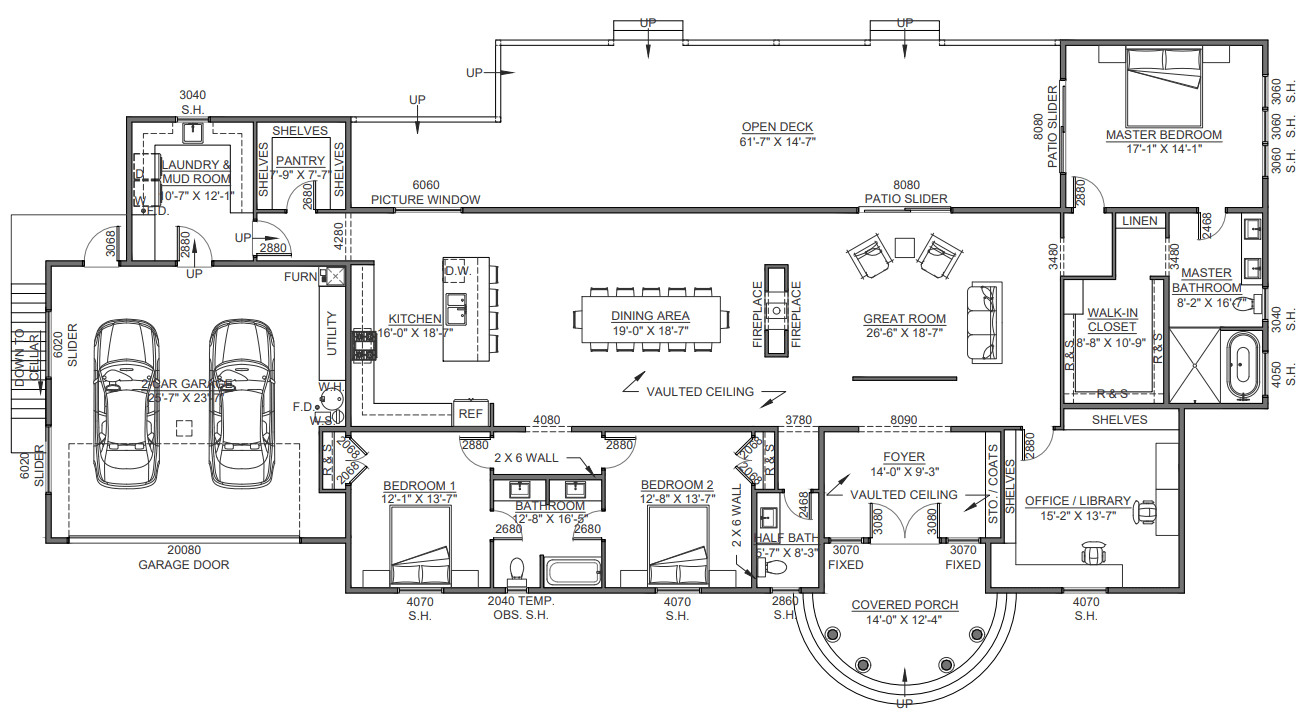
The Elmwarden project includes the complete drafting and design of a custom ranch-style new build with an attached garage and future outdoor wellness connection, prepared as a full permit-ready plan set. The architectural program includes:
• Single-story ranch or rambler design with no interior stairs for accessibility and aging-in-place use
• Approximately 3,000 sq. ft. of living area excluding the garage, organized with clear left and right bedroom zoning
• Attached two-car garage sized at 24' x 24' with direct interior access and layout influence on the overall footprint
• Tall, vaulted foyer and entry sequence with a defined but open transition into the main living area and an entry coat closet
• Open-concept great-room core combining kitchen, dining, and living with abundant daylight and strong backyard orientation
• Dining area sized for approximately 8 to 10 chairs with rear-facing glazing and outdoor connection emphasis
• Primary suite located on the right side with generous bedroom sizing and direct rear deck access via glass or French doors
• Primary bathroom with dual vanity, stand-alone shower, and separate soaking tub with comfortable circulation
• Walk-in closet sized at approximately 10' x 12' connected to the primary suite for daily convenience
• Two secondary bedrooms on the left side connected by a Jack-and-Jill bathroom for guest and family use
• Dedicated office space separated from bedrooms plus a quiet enclosed library sized for extensive book storage
• Rear outdoor living deck connected to both the great room and the primary suite for daily use and entertaining
• Future enclosed hydrotherapy pool or in-ground hot tub structure planned as a later phase, connected via breezeway, covered path, or gazebo-style connector rather than fully within the main envelope
• Code-aware window and opening coordination including updates such as 4070 sill-height window changes in library and bedrooms
• Fireplace feature coordination including a wood-burning chimney element for warmth and character
• Great-room outdoor door strategy refinement including relocating an 8-foot sliding patio door connection into the great room
• Optional cellar planning under the garage with a smaller footprint around 12' x 12' for practical storage and placement efficiency
• Full permit-ready construction set including cover sheet, site plan, floor plans, dimension plans, elevations, building sections, roof plan, foundation and slab plan, and MEP plans with future structural engineering coordination
Challenges Addressed
The design had to combine accessibility and timeless character with a custom footprint and several high-impact functional requirements. Key considerations included:
• Creating a flowing single-story footprint that remains efficient to build and easy to navigate
• Designing a roofline with multiple planes that adds depth without feeling overly complex or overly modern
• Balancing open-concept living with quiet, enclosed rooms like the library and office
• Maintaining privacy between the primary suite and secondary bedroom wing while keeping circulation simple
• Prioritizing rear-facing views and daylight through window strategy and door placement decisions
• Coordinating future wellness structure connection planning without creating ventilation complications in the main house
• Integrating garage, cellar placement, and fireplace chimney elements without disrupting the overall massing
Goals Achieved
Elmwarden delivers a comfortable, upscale ranch home tailored for long-term living and everyday enjoyment:
✔️ Single-level, aging-in-place design with wide circulation and no interior stairs
✔️ Bright open great-room core with strong backyard orientation and outdoor access
✔️ Private right-side primary suite paired with a left-side guest bedroom wing for quiet separation
✔️ Dedicated office and enclosed library spaces that support work and lifestyle needs
✔️ Multi-plane roof and welcoming entry volume that add character without a modern-minimalist feel
✔️ Future-ready planning for a connected wellness structure plus practical features like cellar and fireplace



AutoCad
Elmwarden is a custom ranch designed for long-term comfort, accessibility, and a warm, timeless character. A vaulted entry leads into a bright rear-oriented great room, while the primary suite and secondary bedrooms are zoned for privacy. Office and library spaces add quiet function, and the rear deck and future hydrotherapy structure connection keep outdoor living central without complicating the main envelope.









