Drafting and Design
2026 - Trenton, NJ
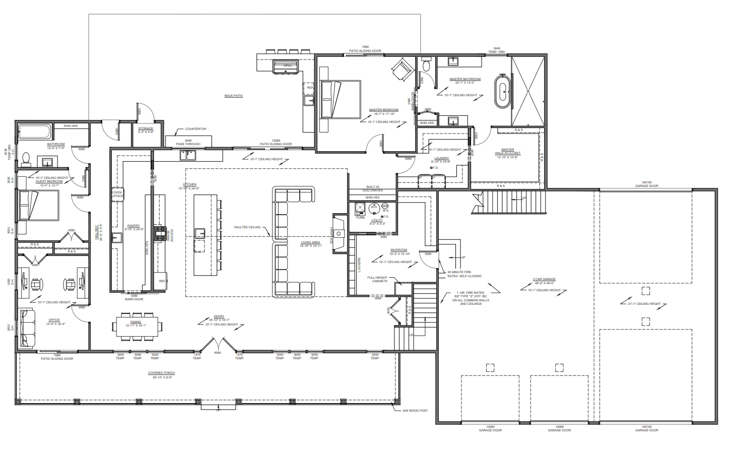
Custom 2-story modern barndo with 6 beds, 4 baths, 3-car garage bonus room, and outdoor living.

Overview
Garnetwild is a large custom two-story residence designed as a modern barndominium-inspired home that balances bold scale with family-first practicality. Planned on a slab-on-grade foundation with 2x6 framing and 10-foot wall heights, the design emphasizes generous room count, strong everyday function, and outdoor living features that support gathering. The home is being developed from scratch, with roof form and exterior finish selections refined during the design phase.
Client Type
Garnetwild was envisioned for first-time custom-home builders who want a statement-scale residence but still need clear guidance, a structured plan set, and a process that helps them finalize style and finishes confidently. The program fits a family seeking multiple bedrooms, dedicated work and wellness spaces, and a garage-centered bonus zone for flexible use. It is ideal for owners who want a full construction document package that can move smoothly into engineering and permitting in New Jersey.
Project Scope
The Garnetwild project includes the complete design and drafting of a custom two-story residence, prioritized around layout clarity, livability, and a permit-ready deliverable. The architectural program includes:
• Two-story custom home planned at roughly 5,500–6,000 sq. ft. with 6 bedrooms and 4 bathrooms
• Core lifestyle rooms including office, gym/bonus room, mudroom, laundry, butler’s pantry, and kitchen with walk-in pantry
• Attached three-car, two-story garage with a bonus room above for flex or man-cave use
• Outdoor living program including a generous covered front porch and a rear patio with outdoor kitchen intent
• Full construction blueprint set with floor plans, site plan, elevations, sections, roof and slab edge planning, and MEP layouts
Challenges Addressed
The design had to support a large, multi-program home while keeping choices manageable for first-time custom builders and ensuring NJ engineering readiness. Key considerations included:
• Organizing a high room count into a coherent two-story layout without wasted circulation
• Designing garage + bonus room massing so it feels integrated rather than appended
• Keeping structural assumptions clear for engineering loads (snow/wind/seismic) and stamping
• Planning outdoor living zones that function daily and read well in elevation
• Maintaining flexibility for roof and exterior finish decisions while progressing the plan set
Goals Achieved
Garnetwild delivers a clear, build-ready direction for a high-capacity custom home:
✔️ Large-scale 6-bed, 4-bath program organized for practical day-to-day use
✔️ Dedicated specialty rooms (office, gym, pantries, mudroom, laundry) that support real lifestyle needs
✔️ Three-car garage with bonus flex space designed as a deliberate second volume
✔️ Strong porch + rear patio program with outdoor kitchen intent for gathering and entertaining
✔️ Permit-ready documentation approach structured for New Jersey engineering and stamping



AutoCad
Garnetwild is a modern barndominium-inspired custom home planned at roughly 5,500–6,000 sq. ft., designed from scratch for first-time custom builders who need clarity and flexibility. With six bedrooms, four bathrooms, specialty rooms, and a three-car garage topped by a bonus space, the home balances scale with function. A strong front porch and rear patio with outdoor kitchen intent extend daily living outdoors, while a full plan set prepares the project for New Jersey engineering and permitting.









