Drafting and Design
2026 - Houston, TX
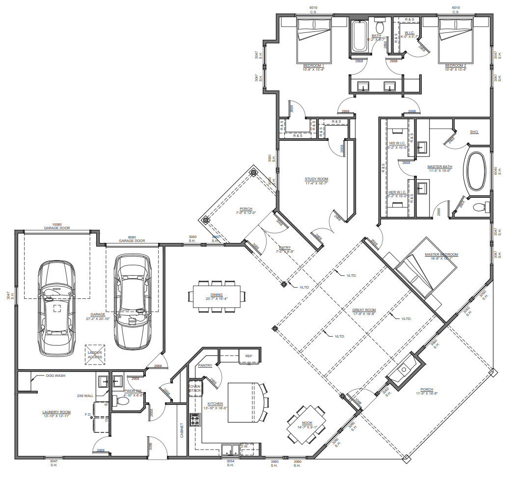
2,658 sf flipped 3-bed plan with shop-to-utility conversion, open-concept column edits, full permit set.

Overview
Goldmere is a one-story, 3-bedroom home plan modification project built around a full mirror flip and a handful of high-impact functional upgrades. The design preserves the proven footprint of the stock plan while reorienting the layout for better views and daily flow, then refines key interior zones to improve openness, utility space, and exterior-wall continuity. The end product is a clean, code-aware construction set suitable for county submission and contractor pricing.
Client Type
Goldmere was envisioned for homeowners who already like a stock plan but want it tailored to their site orientation and lifestyle without turning the project into a full custom-from-scratch design. It fits clients who prioritize a more open dining and living experience, stronger utility and storage planning, and permit-ready documentation that can move smoothly into build quoting. It is ideal for owners working in a county jurisdiction where engineering may be optional but documentation quality still needs to be high.
Project Scope
The Goldmere project includes a flipped and modified 2,658 sq ft single-story residence plan with a 2-car attached garage, delivered as a complete permit-ready blueprint set. The architectural program includes:
• Full plan flip to reorient the layout and optimize the primary living area’s view and lot relationship
• Conversion of the garage shop area into an expanded interior utility zone for laundry, storage, and mechanical planning
• Open-concept refinement focused on support column placement to improve dining and main living openness while remaining structurally feasible
• Primary suite exterior-wall change removing the exterior door and replacing it with a window for continuity and privacy
• Full code-compliant construction document set including floor plan, foundation, roof, elevations, sections, site plan, and MEP layouts (PDF + CAD)
Challenges Addressed
The design had to preserve the strengths of the stock plan while ensuring the flip and edits stay structurally logical and permit-ready. Key considerations included:
• Maintaining clean circulation and room adjacencies after a full mirrored reorientation
• Improving openness at the dining area by adjusting column locations without compromising structural logic
• Reprogramming the shop zone into a utility-heavy interior space with practical laundry and mechanical accommodation
• Replacing a primary bedroom exterior door with glazing without disrupting exterior rhythm or interior furnishing logic
• Keeping the final plan set county-ready with clear sheets and coordination, while leaving engineering as an optional add-on
Goals Achieved
Goldmere delivers a tailored, build-ready plan that stays true to the base design while improving function:
✔️ Flipped orientation that better fits the site and strengthens the main living experience
✔️ Expanded utility and storage capacity via shop-to-utility conversion
✔️ More usable open-concept dining and living zone through smarter column strategy
✔️ Cleaner primary suite exterior wall for privacy and better interior layout flexibility
✔️ Complete permit-ready PDF + CAD deliverables that support pricing, review, and submission



AutoCad
Goldmere refines a proven 2,658 sq ft stock plan into a site-smart, permit-ready build package by flipping the entire layout and focusing changes where they matter most. A shop-to-utility conversion strengthens everyday function, column adjustments improve the dining and living openness, and a primary-suite door-to-window swap cleans up the exterior wall. With a full construction set delivered in PDF and CAD, the project is positioned for smooth contractor pricing and county submission, with structural engineering available if required.









