Drafting and Design
2026 - Phoenix, AZ
4,633‑sf duplex, 2 units, no basement—redrawn for Chandler code with full permitting support.
Table of contents
Overview
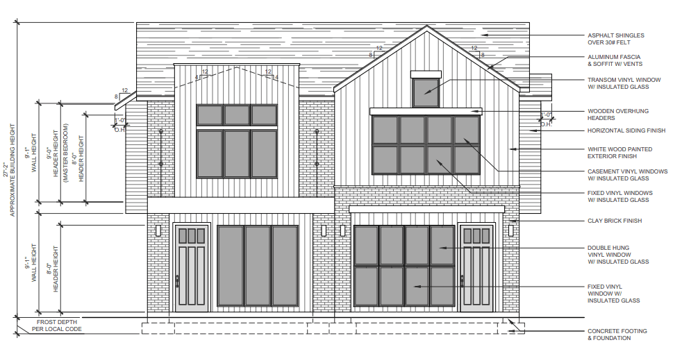
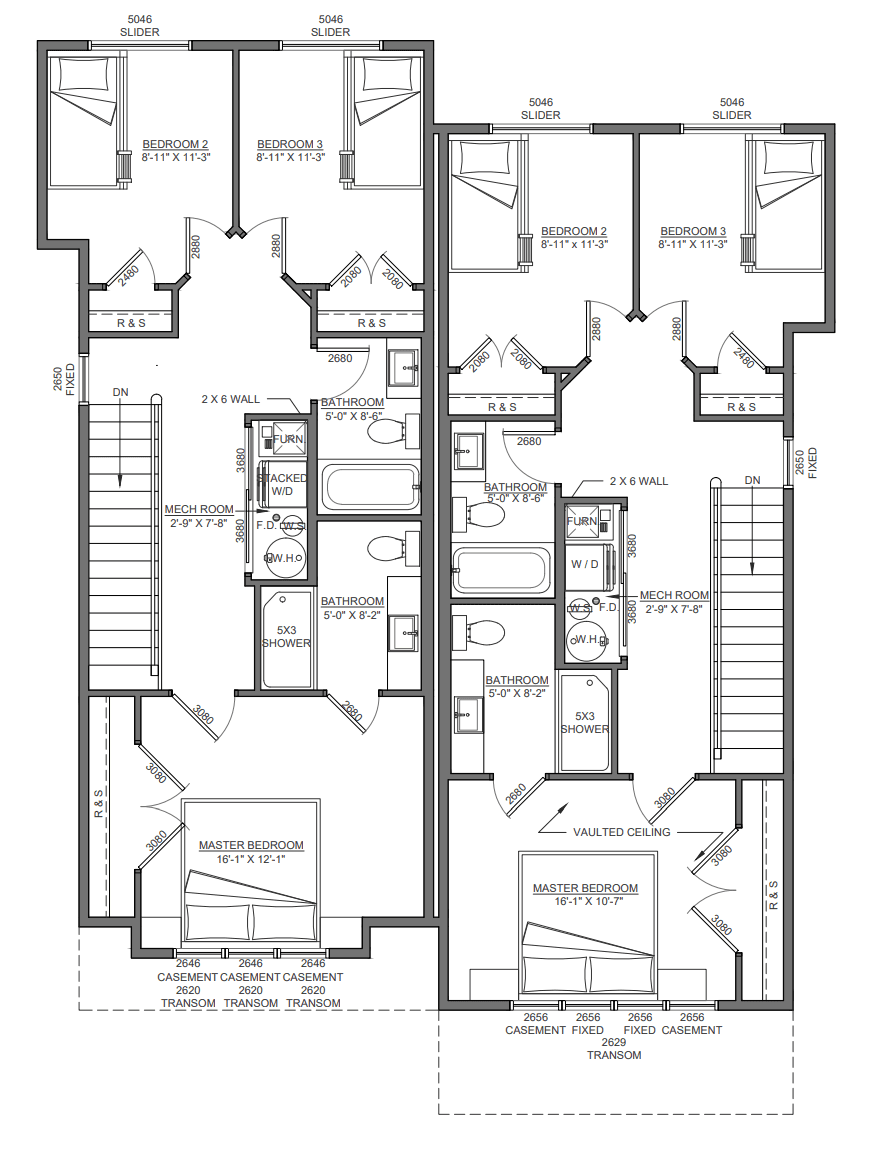
Grantley is a 4,633‑sf, two‑unit duplex redrawn from incomplete plans to meet updated Chandler zoning and height rules. Each roughly 1,838‑sf side delivers 3–4 bedrooms across two stories with garage and parking, while the basement shown in purchased plans is eliminated. Clean sections, coordinated MEPs, and a tailored site plan support a full permitting path.
Client Type
Grantley suits owners navigating a stalled design and shifting code. It favors clarity over inherited confusion, providing complete construction documents, unlimited city‑driven revisions, and expedited permitting coordination to reach approval and break ground in 2026.
Project Scope
The Grantley project delivers a complete construction set and permitting assistance for a duplex:
4,633 sq ft total: two units, each ~1,838 sq ft, 3–4 beds, 2 stories
No basement, despite purchased plans showing one
Full redraft: foundation, floor plans (both levels), roof, elevations, slab and roof sections, MEP layouts
Site plan tuned to Chandler setbacks and new height allowances
Three client revisions plus unlimited city‑required corrections
Expediting and direct city communication through permit approval
Optional structural engineering (~$4,500–$6,000) quoted after drafting if required
Challenges Addressed
Inheriting partial work and eliminating basement while preserving livable area
Aligning with recent zoning updates and height restrictions
Coordinating MEPs and structure across two mirrored units
Managing permitting with clear RFI response and resubmission workflow
Goals Achieved
✔️ Complete, code‑ready duplex set replacing incomplete prior work
✔️ Basement eliminated, plans aligned to current zoning and setbacks
✔️ Clear MEP coordination and foundation logic for two‑unit construction
✔️ Permitting support with unlimited city‑driven corrections included
✔️ Path to approval and 2026 groundbreaking with optional engineering add‑on



AutoCad
Grantley replaces incomplete plans with a clean, two‑unit duplex set sized to updated Chandler rules. With basement eliminated, coordinated MEPs, and a site plan tailored to setbacks, it's ready for permit review. Expediting and unlimited city revisions smooth the path to approval, while optional engineering stands by—poised for a confident 2026 start.










