Drafting and Design
2026 - Tampa, FL
Three-wing single-story barndo with vaulted center core, breezeways, porches, and future-proof right wing.
Table of contents
Overview
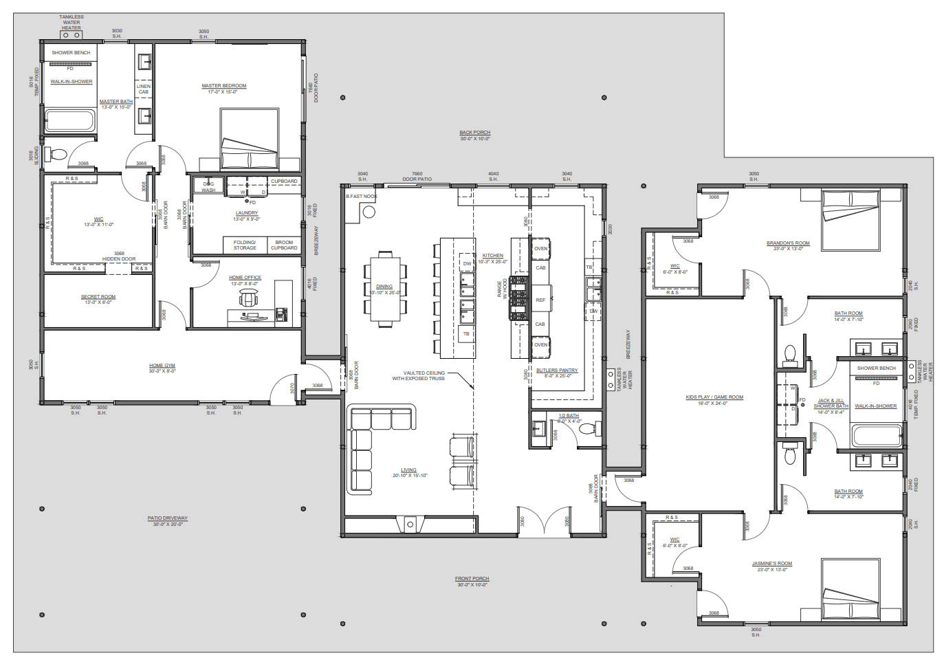
Hearthlark is a single-story custom barndominium compound designed as three distinct 30-foot-wide volumes connected by enclosed breezeways, creating clear separation between private suites and shared gathering space. The layout centers daily life in a vaulted, truss-exposed great-room core while keeping each wing purposeful and independent. Large covered outdoor zones at the front, rear, and drive patio extend the under-roof footprint and reinforce a modern-rural, family-compound feel.
Client Type
Hearthlark was envisioned for a multi-generational household that wants togetherness without sacrificing privacy. The plan supports a primary private wing for the owners, a dedicated common core for family life and hosting, and a separate living wing for adult children with future flexibility built in. It is ideal for hands-on builders prioritizing functional flow, budget-conscious construction, and a long-term home that can adapt as family needs change.
Project Scope
The Hearthlark project includes the complete design and drafting of a stick-built, single-story barndominium compound to code for Escambia County, Florida, including a full architectural and MEP construction set with engineering as a separate phase. The architectural program includes:
• Three connected buildings, each approximately 30 feet wide, linked by enclosed breezeways or hallways
• Total area under roof of approximately 4,932 sq. ft., with living space around 3,916 sq. ft.
• Left wing private quarters for the primary household, including bedroom, bathroom, and laundry, with attic space above
• Center building as the main communal hub with kitchen, living, and dining in a vaulted volume with exposed trusses
• HVAC routing coordinated through the vaulted truss zone with enclosure in stained wood for a clean finished look
• Right wing living zone for adult children with two bedrooms, shared bath, and washer and dryer, plus rough-in plumbing for a future kitchen
• Independent entry intent for the right wing to support autonomy for young families
• Covered outdoor program including a 30' x 10' front porch, a 30' x 10' back porch, and a 30' x 20' covered driveway patio
• Recent patio extension adding approximately 120 sq. ft. under roof as part of the revised total
• Full construction drawing set including floor plans, dimension plans, site plan placement, roof plan, foundation plan, elevations, and cross sections
• Full MEP layouts, including tankless water heaters wall-mounted externally and plumbing rough-ins for the future right-wing kitchen
• Structural engineering prepared as Phase 2 with stamping and load calculations following architectural completion
Challenges Addressed
The design had to deliver clear multi-wing separation while maintaining a cohesive build system and honoring specific structural preferences. Key considerations included:
• Preserving the intended functional flow across three connected volumes without creating confusing circulation
• Coordinating a vaulted center volume with exposed trusses while integrating concealed HVAC routing cleanly
• Maintaining truss spacing intent and staggered configuration while keeping the plan buildable and efficient
• Future-proofing the right wing with rough-in plumbing for a later kitchen without forcing immediate complexity
• Balancing large under-roof outdoor spaces with an economical, budget-aware construction approach
• Producing a plan set that supports county code compliance now and a smooth transition into engineering and stamping later
Goals Achieved
Hearthlark delivers a multi-generational barndominium compound that is both practical and adaptable:
✔️ Three-wing separation that supports privacy, autonomy, and a strong shared family core
✔️ Vaulted, truss-exposed central gathering space designed for comfort and visual impact
✔️ Right-wing flexibility with future kitchen rough-ins to adapt over time
✔️ Covered front, rear, and drive patio zones that expand daily livability under roof
✔️ Full architectural and MEP drafting scope aligned to Escambia County requirements
✔️ Engineering-ready package structured for a clean Phase 2 stamping process


AutoCad
Hearthlark is a custom, single-story barndominium compound built for multi-generational living, using three connected 30-foot-wide buildings to separate private wings from a vaulted central gathering space. Covered porches and a drive patio extend the under-roof footprint, while full MEP planning and future kitchen rough-ins keep the home adaptable. The package is code-focused now and structured for engineering and stamping as a next phase.










