Drafting and Design
2026 - Mansfield, PA
Tear-down rebuild with modified stone foundation, 2-story main + addition, deck, and permit-ready set.

Overview
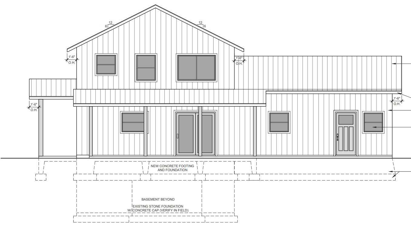
Kestrelforge is a contemporary tear-down and rebuild designed to transform an existing site into a clean, permit-ready new residence while reworking key structural constraints. The concept replaces the existing home with a new two-story rectangular main volume plus a single-story side addition, all coordinated around a modified foundation approach. Exterior character is sharpened through symmetrical gable-end composition, standing-seam roofing, and board-and-batten metal siding for a crisp, durable finish.
Client Type
Kestrelforge was envisioned for experienced, hands-on builders who have a clear floor plan vision and want professional drafting that can move quickly toward permit submission. The program fits owners comfortable coordinating structural intent (including post-and-beam elements and specialty materials) while relying on a tight, construction-document-level plan set for township review. It is ideal for clients who prioritize buildability, field clarity, and fast iteration on targeted revisions.
Project Scope
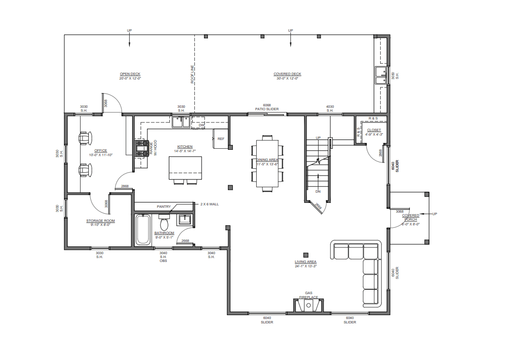
The Kestrelforge project includes the drafting of a permit-ready document set for a residential tear-down and new construction, with foundation retention and modification coordination. The architectural program includes:
• Demolition plan showing the existing structure to be fully removed while retaining the stone foundation and indicating areas to be leveled or modified for the new build
• New residence layout as a two-story main rectangular structure plus a single-story side addition, coordinated to existing and new foundation extents
• Foundation strategy documentation including concrete cap over existing stone foundation, new footer excavation where required, and block wall integration where alignment changes are needed
• Full architectural set production (plans, dimensions, elevations, roof plan, sections, and structural framing intent) aligned to township submission standards
• Permit-level MEP layouts for mechanical, electrical, and plumbing coordination, plus targeted revision integration (window schedules, door alignment, deck and covered deck program, stair bump-out logic)
Challenges Addressed
The design had to reconcile an existing foundation condition with new layout geometry while integrating high-visibility exterior symmetry and practical stair/headroom constraints. Key considerations included:
• Retaining and capping an existing stone foundation while modifying alignment without compromising the new footprint
• Resolving basement stair headroom and turn requirements by introducing a bump-out strategy for compliant circulation
• Achieving gable-end symmetry through coordinated window sizing and spacing while allowing minor interior room shifts to support exterior proportion
• Integrating post-and-beam intent with owner-supplied red oak members while keeping framing documentation clear for execution
• Coordinating a long deck and partially covered deck program with openings (slider and office door), sink/window placement, and elevation consistency
Goals Achieved
Kestrelforge delivers a clear, field-ready plan direction that supports permitting and construction sequencing:
✔️ Defined tear-down scope with retained foundation intent documented for review and build clarity
✔️ Foundation and basement approach coordinated to avoid future conflicts and address stair feasibility early
✔️ Symmetry-forward exterior revisions captured through window and door alignment for a cleaner gable-end elevation
✔️ Post-and-beam and specialty material intent organized into a readable framing narrative for builders
✔️ Permit-ready sheet structure that supports township submission without requiring stamps under current requirements




AutoCad
Kestrelforge converts a tear-down site into a modern, permit-ready new build by pairing a two-story main volume with a single-story addition and a carefully coordinated foundation strategy that reuses and caps an existing stone base. Stair feasibility, deck integration, and symmetry-driven gable-end revisions are resolved early to reduce field surprises. With a complete plan set and clear framing intent, the project is positioned for smooth township submission and efficient construction.









