Drafting and Design
2026 - Llano, CA
Under‑1,000‑sf cabin with open core—permit‑ready, efficient, and owner‑builder friendly.
Table of contents
Overview
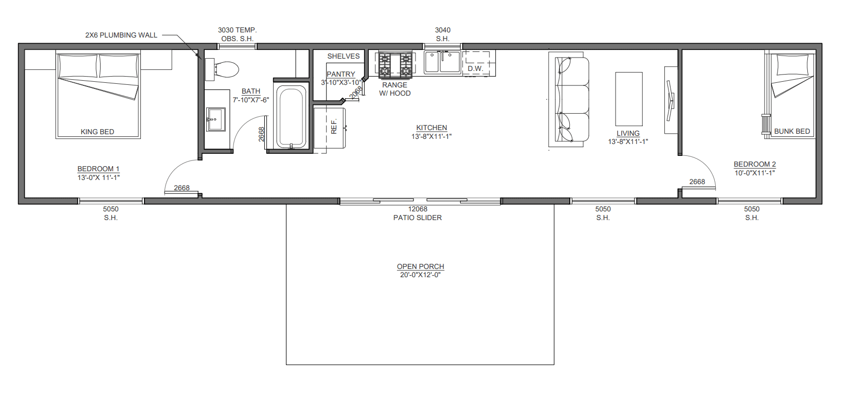
Lysken is a compact, single‑story cabin distilled to essentials: a sub‑1,000 sq ft rectangle with an open living‑kitchen core and a corner pantry. Designed for a straightforward permit path, it pairs slab and roof plans with clear MEP intent and optional engineering, keeping documentation crisp for an owner‑builder timeline in Llano, California.
Client Type
Lysken suits owner‑builders seeking a simple, cost‑aware plan that’s easy to price, permit, and construct. It emphasizes legible drawings, modest systems, and a calm, efficient layout with two bedrooms and one bath.
Project Scope
The Lysken project delivers a complete permit‑ready set for a one‑story cabin:
Under 1,000 sq ft with 2 bedrooms and 1 bathroom
Open living and kitchen with a corner pantry
Slab plan and roof plan with coordinated sections as needed
MEP intent including ceiling fans in bedrooms and living room
Optional structural engineering stamp if required by the jurisdiction
Foundation preference: ground screws (final engineering by others if pursued)
Challenges Addressed
Achieving comfortable living within a compact rectangular footprint
Packaging MEP intent clearly without over‑design
Keeping the set flexible for a start‑anytime schedule and contractor pricing
Allowing ground‑screw foundation preference while preserving permit clarity
Goals Achieved
✔️ Clear, compact plan tailored to a simple build sequence
✔️ Permit‑ready documentation with optional stamping path
✔️ Straightforward MEP pages sized to residential review needs
✔️ Efficient circulation and storage within a modest envelope
✔️ Clean coordination that supports fast estimating and approvals


AutoCad
Lysken turns a simple rectangle into a livable, permit‑ready cabin. The open living‑kitchen core, corner pantry, and two quiet bedrooms maximize a modest footprint, while slab, roof, and MEP pages keep reviews smooth. With an optional engineering path and ground‑screw readiness, it’s built for clear pricing, approvals, and a confident start.










