Drafting and Design
2026 - Miami, FL
Back-to-back sandstone duplex prototype with crawl space, mirrored wet walls, and roof drainage focus.
Table of contents
Overview
Marrowind is a compact, repeatable duplex concept designed for fast replication across a small multi-unit rollout while keeping construction practical and visually distinctive. The plan uses a back-to-back configuration with a shared central wall to concentrate plumbing and simplify builds, while natural sandstone exterior and interior separation walls give the project a durable, regional character. A unified roof strategy is emphasized to prevent water pooling where the two units meet, supporting long-term performance in West Texas conditions.
Client Type
Marrowind was envisioned for builders or small-scale developers looking to launch a cost-controlled duplex prototype that can be repeated across multiple future units without redesign fatigue. The program supports hospitality-leaning use cases and straightforward long-term rentals, with simple interiors that feel clean and efficient rather than overly customized. It’s ideal for owners who value durability, easy maintenance access via crawl space, and a design language that stays consistent across an 8-unit expansion plan.
Project Scope
The Marrowind project includes the architectural planning and drafting of a back-to-back duplex prototype intended to be expanded into a larger multi-duplex development. The architectural program includes:
• Duplex configured back-to-back with a shared common wall to centralize plumbing and reduce construction cost
• Mirrored unit planning so kitchens and bathrooms align along the shared wall while maintaining privacy separation
• Approximately 1,200 sq ft total for the combined duplex, targeting roughly 600 sq ft per unit with flexibility toward a smaller 500 sq ft per unit footprint
• Foundation design using footers with a crawl space to support plumbing access and freeze-related maintenance considerations
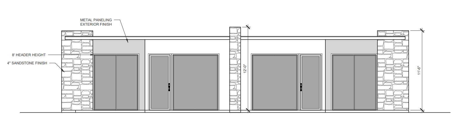
• Natural sandstone block exterior walls using locally available material, coordinated to match the intended stone aesthetic
• Interior stone wall separations between kitchen and bathroom zones to meet privacy expectations and city requirements
• Roof form coordination to avoid a central “V” condition and prevent water collection at the unit connection line
• Small deck areas at unit fronts with future landscape coordination in mind, including planned sidewalk and retaining elements
• Simple, hotel-suite-style interior planning accommodating two queen beds and a TV within the main living/sleeping space
• Compact utility closet placement near the kitchen area for water heater and service needs, with discreet integration for space efficiency
• HVAC flexibility planning to allow hotel-style window units now while keeping the option open for mini-split conversion later
• A design language and plan strategy intended to scale cleanly to additional duplexes with minimal changes
Challenges Addressed
The design had to stay extremely repeatable and budget-aware while managing material-driven constraints and roof performance at the shared connection. Key considerations included:
• Preventing roof drainage issues where back-to-back units meet, especially avoiding water pooling at the centerline
• Keeping the footprint compact without losing livability or the intended “suite-style” room function
• Using sandstone as both a visual and separating element without overcomplicating detailing or wall thickness impacts
• Maintaining privacy between kitchen and bath zones while still keeping plumbing runs efficient and centralized
• Designing for crawl space access to reduce future plumbing maintenance risk in a climate with freeze concerns
• Preserving a simple, replicable exterior expression that can be repeated across multiple future units
• Keeping mechanical planning flexible so HVAC strategy can evolve without plan-set rework
Goals Achieved
Marrowind delivers a scalable duplex prototype that prioritizes cost control, durability, and repeatability:
✔️ Back-to-back mirrored duplex layout that centralizes plumbing and supports efficient construction
✔️ Crawl-space foundation approach that improves service access and long-term maintenance
✔️ Natural sandstone exterior character with interior separation strategy aligned to privacy requirements
✔️ Roof concept direction focused on drainage performance and avoiding centerline water collection
✔️ Suite-style interior planning suitable for rental or hospitality-adjacent use cases
✔️ A repeatable prototype framework designed to expand from one duplex into a larger unit rollout



AutoCad
Marrowind is a repeatable duplex prototype designed to scale from a single build into a multi-unit rollout without losing efficiency. A back-to-back mirrored plan concentrates plumbing along a shared wall, while a crawl-space foundation supports maintenance in West Texas conditions. Sandstone walls and a drainage-smart roof concept add durability and character while keeping the design simple to replicate.










