Drafting and Design
2026 - Lincoln, NE
Luxury new-build with full basement, breezeway link, and set-back 30x30 detached garage.
Table of contents
Overview
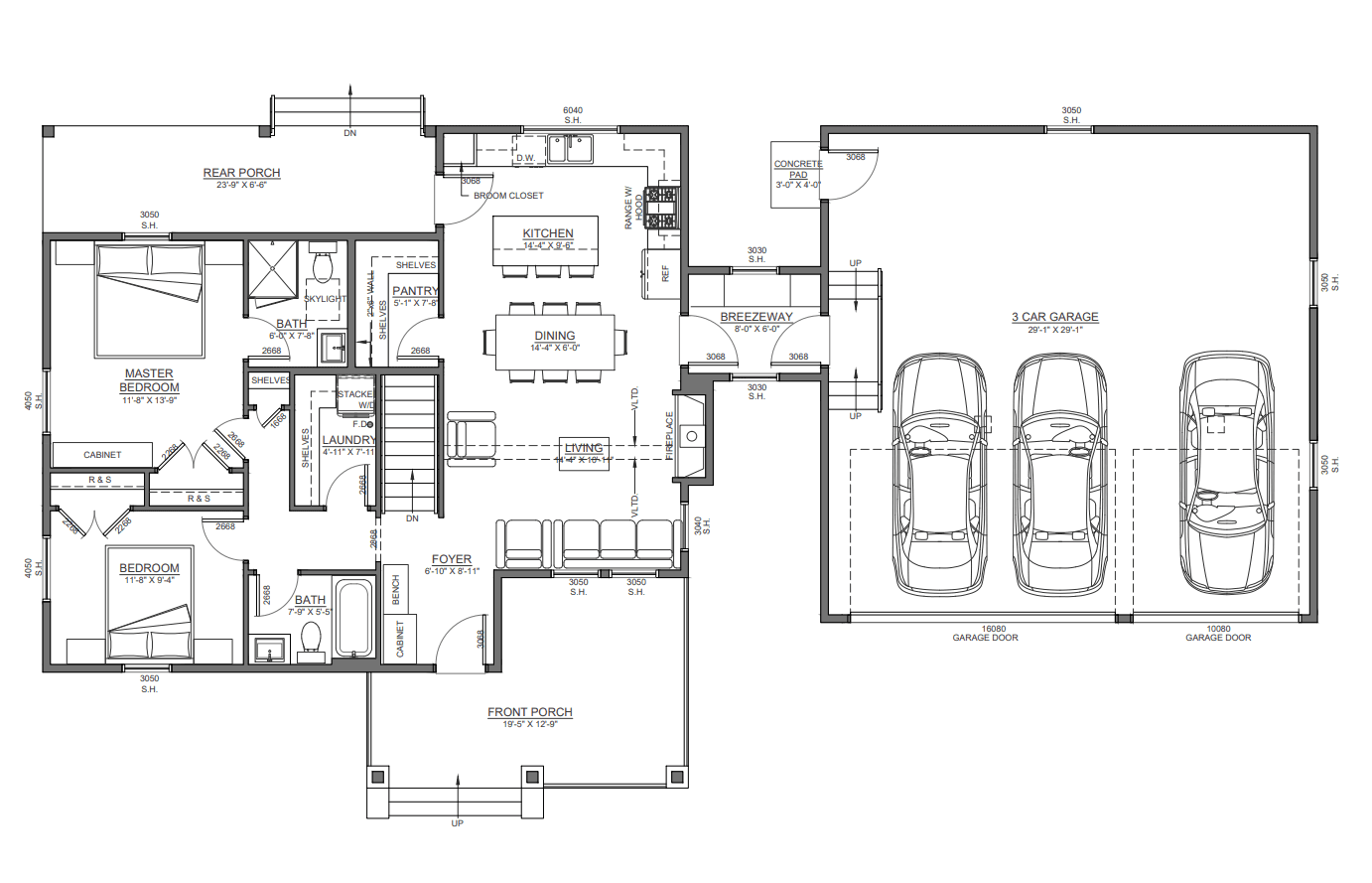
Montclarion is a high-end new-build residence designed around classic comfort with refined, modern planning upgrades. The concept preserves the reference home’s exterior character and interior finish direction while introducing a full basement, a breezeway connection, and a detached garage arrangement that reads intentional and estate-like. The result is a cohesive home-and-garage composition built for clear cost comparison between modular and traditional construction methods.
Client Type
Montclarion was envisioned for owners who want a polished, traditional-leaning home with premium material choices and practical layout improvements, without drifting away from a proven reference design. The program fits a household that values clean finishes, durable flooring, and a connected-but-separated garage experience. It is also well suited to buyers who want a complete, buildable plan set for budgeting and construction-path decision making.
Project Scope
The Montclarion project includes the complete drafting and design of a new single-family home package based on provided reference materials, with targeted modifications and added structures. The architectural program includes:
• Primary residence closely modeled on the reference home’s layout, exterior style, and interior finish direction
• Full basement foundation with an integrated main-level stair, with flexibility to adjust the footprint depth or length to achieve a logical, code-aligned stair location
• Mirrored floor plan adjustment to relocate the bedroom and bath wing from the right side to the left when viewed from the front
• Interior layout orientation adjustment to place the dining and living spaces on the right side of the home while keeping exterior and overall proportions aligned to the primary reference
• Breezeway connection designed to create a direct, comfortable transition between the house and the garage without disrupting the main interior flow
• Detached garage planned at 30 ft by 30 ft, connected by the breezeway and set back from the front façade for stronger curb composition
• Garage placement coordinated to sit behind the fireplace chimney line, maintaining the intended massing and visual balance
• Interior finish direction including no carpet throughout and a consistent hardwood maple flooring approach on the main level
• Full construction drawing set including floor plans, dimension plans, elevations, roof plan, garage and breezeway plans, and representational MEP layouts
• Detailed materials takeoff intended for pricing comparisons based on the finalized design
Challenges Addressed
The design had to remain faithful to the reference home while accommodating major program additions and a specific site-like composition for the garage. Key considerations included:
• Integrating a full basement stair without compromising the primary floor plan’s clarity and flow
• Executing a clean mirrored plan shift while preserving functional adjacencies and exterior logic
• Aligning interior room orientation preferences without borrowing unintended proportions or exterior cues from secondary reference material
• Designing a breezeway that feels architectural and deliberate rather than an afterthought connector
• Positioning a detached garage with a set-back relationship that improves the front elevation composition
• Maintaining finish consistency with a no-carpet requirement and a premium hardwood direction
• Producing a complete plan set that supports accurate budgeting, takeoffs, and build-path comparisons
Goals Achieved
Montclarion delivers a premium, reference-faithful home concept with meaningful functional upgrades:
✔️ Classic exterior and interior direction preserved with targeted, practical modifications
✔️ Full basement integration with flexible stair planning for code-aligned placement
✔️ Clean house-to-garage relationship via a breezeway that supports daily convenience
✔️ Detached garage placement that reinforces an estate-like composition and curb presence
✔️ Finish direction that prioritizes durability and a cohesive high-end feel
✔️ Complete drawing set and materials takeoff foundation for confident pricing comparisons




AutoCad
Montclarion elevates a proven reference home into a premium, decision-ready build package by adding a full basement, a breezeway connection, and a set-back detached garage composition. Mirrored planning and interior orientation adjustments keep the layout functional and familiar, while hardwood-forward finishes and a full plan set support accurate takeoffs and pricing comparisons.










