Drafting and Design
2026 - Huntington, WV
1.5‑story home under 2,000 sf—cathedral core, east‑wall kitchen, raised block foundation.
Table of contents
Overview
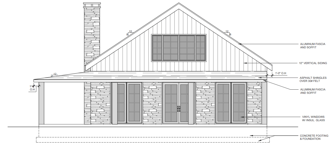
Myrren is a 1.5‑story, under‑2,000‑sf home shaped around a cathedral great room and a budget‑steady raised block foundation. A centered fireplace anchors the living core while the kitchen along the east wall keeps venting simple and circulation clear. Wrap‑around porch coverage extends daily use without adding to heated square footage.
Client Type
Myrren fits owners prioritizing cost control, clarity, and future flexibility. It favors efficient area, phased finishing options upstairs, and documentation that invites fixed‑price bids with minimal change orders.
Project Scope
The Myrren project delivers a complete permit set aligned to strict constraints. The architectural program includes:
Total heated area at or below 2,000 sf, no basement
Raised concrete‑block foundation with interior piers as needed
1.5 stories with a cathedral great room and overlook landing
Fireplace centered between kitchen and great room
Kitchen on east wall with large island and exterior‑vented gas range hood
Main level: 2 bedrooms preferred, 3 as an alternate if area allows
Primary suite sized for aging‑in‑place practicality
Baths: primary plus a secondary full; powder room preferred on main
Laundry on main with 220V and gas stub; HVAC typical, equipment likely in attic
Upper level planned for a third bedroom or future‑finish rec space
Wrap/extended porch, unconditioned and excluded from heated sf
Site plan to show pole barn (~20 ft NW), south‑side breezeway, retaining wall and access stairs
Challenges Addressed
Holding heated area ≤ 2,000 sf while preserving a generous cathedral core
Coordinating raised‑block structure and spans without a basement
Placing kitchen, fireplace, and stair to optimize venting, views, and flow
Providing an upstairs path that can be finished later without rework
Goals Achieved
✔️ Area discipline with a bright, cathedral living heart
✔️ Efficient plan options: 2‑bed main or 3‑bed within limits
✔️ Simple venting and service runs via east‑wall kitchen strategy
✔️ Raised‑block foundation and porch integration suited to site and budget
✔️ Permit‑ready set tuned for fixed‑price bidding and minimal change orders



AutoCad
Myrren distills a warm, cathedral‑centered plan into an under‑2,000‑sf envelope with a raised block foundation and wrap porch that adds use, not load. The east‑wall kitchen simplifies venting and flow, while the upstairs flex can finish later. Clear sheets and disciplined area keep bids tight, permits smooth, and construction predictable.










