Drafting and Design
2026 - Lufkin, TX
Slim 30‑ft urban home, 2 bed/2 bath, porch‑forward, efficient and permit‑ready for Texas.
Table of contents
Overview
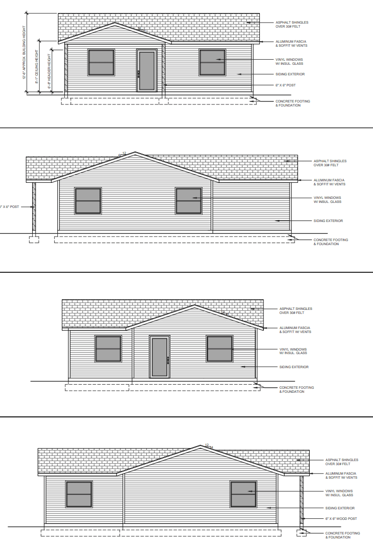
Nimbria is a slim, city-lot home tailored to a 30‑ft width, blending porch‑forward charm with an efficient, open interior. Targeted at 800–953 sq ft, it prioritizes smart circulation, clear drafting for a quick turnaround, and a clean, cabinet-forward kitchen swap in place of a dishwasher—ready to move from concept to permit with minimal friction.
Client Type
Nimbria fits owners seeking a compact, budget-conscious custom home that maximizes a narrow parcel. It supports everyday living with two bedrooms, two baths, and an open kitchen‑living core, plus a front porch presence that adds curb appeal without excess footprint.
Project Scope
The Nimbria project delivers a permit‑ready Texas set on an urgent 2–3 week timeline. The architectural program includes:
Two bedrooms and two bathrooms in a right‑sized layout
Open‑concept kitchen and living area
Front elevation revised to a level face with a porch
Kitchen adjustment replacing the dishwasher with continuous cabinetry
Plan footprint optimized to 28–30 ft wide and up to 45 ft long
Full drafting deliverables: floor plan, elevations, electrical, plumbing, mechanical (basic), roof, foundation/slab edge, framing, cross‑sections, site plan, city redline support at no charge
Challenges Addressed
Achieving comfortable rooms within a 30‑ft maximum width
Meeting an accelerated schedule while preserving clarity and quality
Coordinating efficient MEP layouts in a compact envelope
Aligning a porch‑forward elevation with budget and build simplicity
Goals Achieved
✔️ Narrow‑lot plan that feels open and livable
✔️ Clear documentation path for quick permitting in Texas
✔️ Cabinet‑forward kitchen solution with simplified maintenance
✔️ Porch‑centric curb appeal within tight setbacks
✔️ Reusable plan logic suitable for multiple nearby parcels
✔️ Streamlined revisions with city correction coverage


AutoCad
Nimbria refines narrow‑lot living into a bright, efficient plan with porch‑front character and clear, buildable detailing. Designed for a fast path to permit, it balances two beds, two baths, and an open core within a 30‑ft width, swaps the dishwasher for storage, and includes full city‑redline support—ready for repeatable use across parcels.










