Drafting and Design
2026 - Iron County, UT
Vaulted 3-bed home with flush front façade, covered patios, detached 30x30 garage, full plans.
Table of contents
Overview
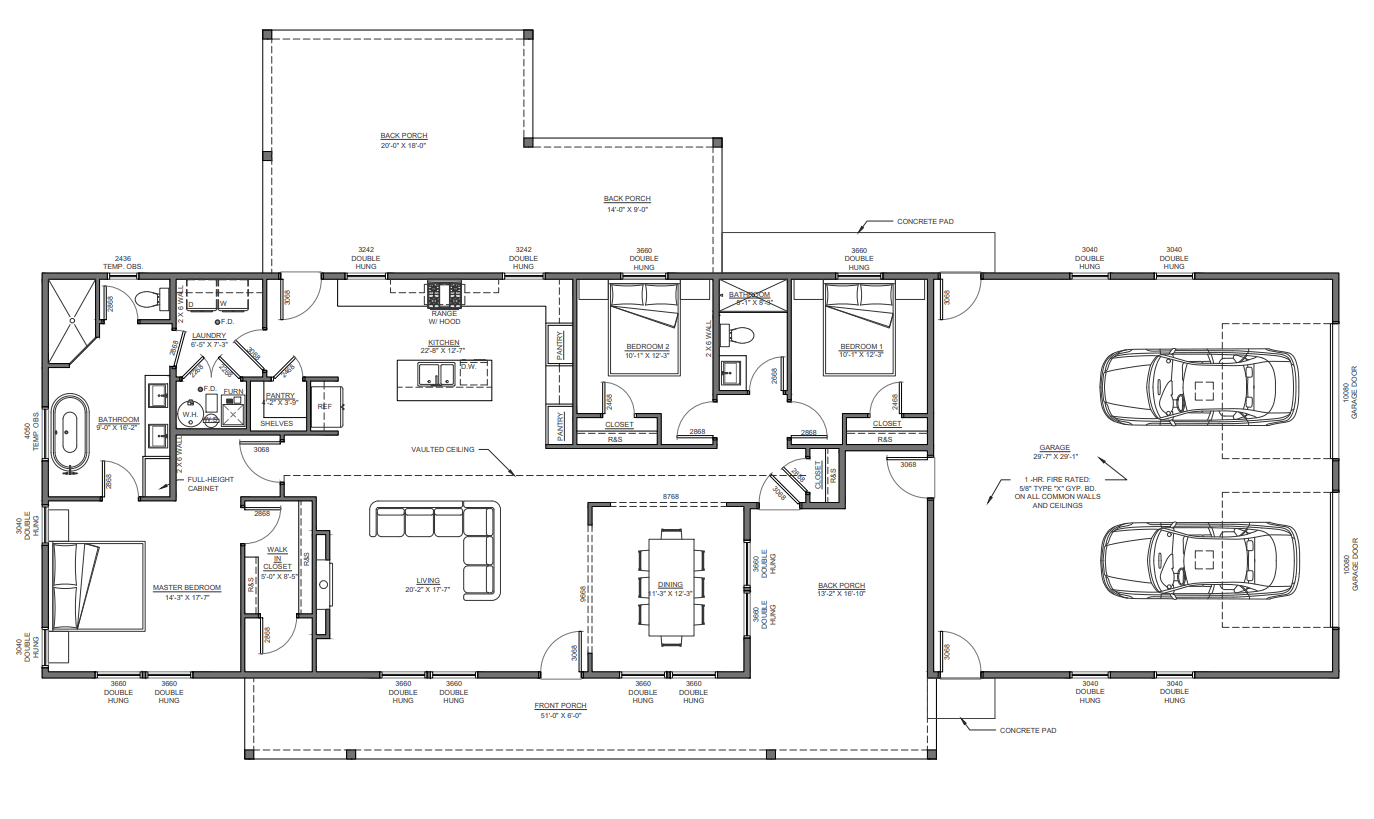
Opaline is a custom residential plan set built to complete and refine an existing home concept into a clean, build-ready design with coordinated exterior character. The layout centers on a vaulted great-room zone spanning the living, kitchen, and dining areas, creating a bright, open core while keeping the overall footprint efficient. A flush front façade approach preserves interior depth, while covered front and rear outdoor spaces extend livability without complicating the primary massing.
Client Type
Opaline was envisioned for owners who already have a preferred layout direction and want a professional, streamlined plan set to move the project forward with confidence. The design supports comfortable daily living with an open vaulted core and clear room zoning, while maintaining practical dimensions and straightforward buildability. It is suited to those who value a refined exterior look, simple decision-making, and a complete architectural package that is ready for construction coordination.
Project Scope
The Opaline project includes the completion and refinement of a full architectural plan set based on an existing floor plan concept and reference elevations, with targeted adjustments to meet layout preferences and frontage constraints. The architectural program includes:
• Approximately 1,980 sq. ft. primary residence plan with covered front and rear outdoor areas
• Vaulted ceiling design spanning the living room, kitchen, and dining area, with options evaluated for running the vault through the core in the preferred direction
• Three-bedroom layout carried forward from the provided floor plan concept, including a custom bathroom configuration as indicated in reference materials
• Front elevation refinement to keep the front entry and porch line flush with the façade, avoiding recessed conditions that reduce interior living space
• Covered rear patio configuration aligned with the overall roof strategy and exterior elevations
• Detached garage planned at approximately 30 ft by 30 ft, with a coordinated drafting approach to include necessary mechanical considerations
• Full architectural plan set deliverables including floor plans, roof plan, foundation plan (as applicable), exterior elevations, cross sections, and site plan framework
• Representational plumbing layout included, with electrical and mechanical excluded where not required
Challenges Addressed
The design had to preserve an already-selected layout concept while refining key geometry and elevation details to protect interior area and achieve the preferred vaulted-ceiling direction. Key considerations included:
• Maintaining a three-bedroom layout while coordinating a custom bath plan and clear circulation
• Achieving a vaulted great-room effect without forcing the vault orientation to fight the building depth
• Keeping the front façade and porch condition flush to avoid losing living room and kitchen area
• Coordinating covered outdoor spaces with roof geometry so elevations remain clean and consistent
• Integrating a detached garage into the overall drafting scope without distracting from the primary residence design
• Producing a complete, construction-ready architectural set that communicates intent clearly and reduces revision churn
Goals Achieved
Opaline delivers a refined, build-ready residential package that balances openness with practical constraints:
✔️ Vaulted living, kitchen, and dining core that elevates the main daily experience
✔️ Flush front elevation approach that protects interior square footage and improves façade clarity
✔️ Three-bedroom layout supported by a custom bathroom configuration and clean circulation
✔️ Covered front and rear outdoor areas that extend livability with simple roof coordination
✔️ Detached 30x30 garage incorporated into the overall plan scope with clear separation of use
✔️ Complete architectural plan set suited for contractor coordination and next-step execution



AutoCad
Opaline refines an established home concept into a clean, construction-ready plan set by focusing on what matters most: a vaulted great-room core, a flush front façade that preserves interior depth, and covered outdoor space that reads intentional in elevation. With a coordinated detached garage and complete architectural deliverables, the design is positioned for efficient execution.










