Drafting and Design
2026 - Tonopah, AZ
Under-1,000 sf single-story home with full-width porch, centered gable, stucco/stone, permit-ready set.

Overview
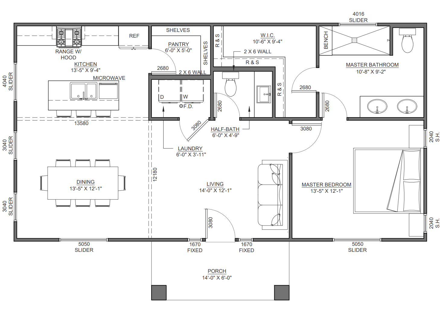
Redchapel is a compact, single-story new build designed to stay under 1,000 square feet while still presenting a strong, classic front elevation and a comfortable everyday layout. The home is organized for straightforward construction with a slab-on-grade foundation, simple stick framing, and pre-manufactured trusses, while a full-width front porch and a centered front-facing gable create a distinctive, welcoming façade. Stucco finishes with targeted stone veneer accents add durability and curb appeal without overcomplicating the exterior.
Client Type
Redchapel was envisioned for hands-on owner-builders who want a clean, permit-ready plan set to support county approval and accurate contractor pricing while self-performing portions of the work. The program fits individuals or small households looking for an efficient footprint that can be built first on a larger parcel, with flexibility for future property decisions that do not disrupt the initial home. It’s ideal for clients who value a clear, buildable scope, practical detailing, and a simple path through revisions and engineering confirmation.
Project Scope
The Redchapel project includes the complete design and drafting of a single-family, single-level residence under 1,000 sq. ft., developed from client sketches and reference imagery and prepared as a permit-ready architectural set for county review. The architectural program includes:
• Single-story home under 1,000 sq. ft. intended as an initial build on a larger parcel
• Full-width front porch spanning the entire front elevation for outdoor living and a defined entry
• Centered front-facing gable feature to create a tower-like focal point at the façade
• Rear standard gable roof configuration for a clean, buildable roof form
• Slab-on-grade foundation intent with final confirmation based on jurisdiction requirements
• Conventional stick framing using primarily 2x4 exterior walls with 2x6 where structurally required
• 9-foot ceiling height throughout for a more open interior feel
• Pre-manufactured roof trusses with asphalt shingle roofing
• Exterior finish package including stucco on all elevations plus a stone veneer accent band and stone veneer porch columns
• Permit-ready plan set (approximately 7 sheets) including cover, site plan, dimensioned floor plan, elevations, roof plan, sections as required, and general construction notes
• Revision structure including three design revision rounds with a concept timeline around 3 weeks and full set completion around 6 weeks, assuming timely feedback
• Engineering coordination as an optional add-on if required by the county, quoted separately after architectural completion
Challenges Addressed
The design had to achieve strong curb identity and permit-ready completeness within a very compact footprint and a cost-aware construction approach. Key considerations included:
• Preserving livability and comfort while holding the home under 1,000 sq. ft.
• Creating a distinctive front elevation using porch and gable emphasis without introducing complex roof intersections
• Coordinating a material palette that feels durable and intentional while staying build-efficient
• Maintaining originality and code compliance while using client reference plans and elevation inspiration
• Preparing a clean, contractor-friendly drawing set that supports both permitting and accurate trade bids
• Keeping the plan adaptable to jurisdictional engineering requirements without overpromising scope
Goals Achieved
Redchapel delivers a compact, build-ready home concept that balances simplicity with character:
✔️ Under-1,000 sq. ft. single-story layout designed for efficient construction and approval
✔️ Full-width front porch and centered gable feature for strong, welcoming curb presence
✔️ Simple roof strategy using trusses and standard gable geometry for buildability
✔️ 9-foot ceilings and practical framing approach aligned with cost-conscious construction
✔️ Stucco and stone veneer accents that add durability and visual weight where it matters most
✔️ Permit-ready plan set structure with clear revision and optional engineering pathway
100 character short description
Under-1,000 sf single-story home with full-width porch, centered gable, stucco/stone, permit-ready set.
350 character conclusion
Redchapel is a compact Tonopah-area new build designed to stay under 1,000 square feet while still reading bold and complete from the street. A full-width porch and centered gable create a strong entry identity, supported by a simple trussed gable roof and durable stucco-and-stone exterior detailing. With a clean, permit-ready sheet set and optional engineering coordination, the project is positioned for efficient pricing, review, and construction.


AutoCad
Redchapel is a compact Tonopah-area new build designed to stay under 1,000 square feet while still reading bold and complete from the street. A full-width porch and centered gable create a strong entry identity, supported by a simple trussed gable roof and durable stucco-and-stone exterior detailing. With a clean, permit-ready sheet set and optional engineering coordination, the project is positioned for efficient pricing, review, and construction.









