Drafting and Design
2026 - Chicago, IL
Single‑story plan with rear garage and cost‑smart utilities, tuned for clarity and buildability.
Table of contents
Overview
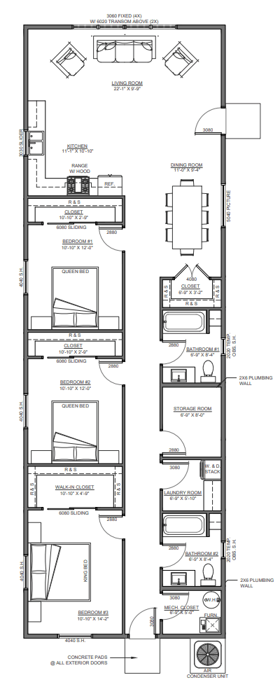
Rhendin is a single‑level urban home balanced for cost‑smart construction and everyday comfort. A roughly 1,610 sq ft layout consolidates plumbing along one side, while a detached 20'×20' rear garage keeps the façade clean. Planned 5/12 gable roofing, a brick front, and fiber‑cement siding create durable curb appeal within a disciplined, buildable envelope.
Client Type
Rhendin suits owners who value practical flow, modest costs, and clear documentation. The plan favors straightforward framing, short utility runs, and flexible bedroom and bath tuning without sacrificing comfort or character.
Project Scope
The Rhendin project provides a complete construction set for a single‑story residence plus detached garage. The architectural program includes:
Approximately 1,610 sq ft house with 4 bedrooms and 2 to 2.5 baths
Open living, dining, and kitchen core with consolidated wet walls
Detached 20'×20' two‑car garage at the rear of the lot
5/12 gable roof, brick front façade, and fiber‑cement lap elsewhere
Options to optimize: bedroom widths, bath sizes, stacked laundry, and a larger rear bath with separate shower
Full sheets: floor, dimensions, roof, foundation, elevations, sections, electrical, plumbing, mechanical, and site plan
Challenges Addressed
Right‑sizing rooms within a fixed single‑level footprint
Minimizing plumbing costs through wet‑wall alignment
Integrating a rear detached garage and maintaining front presence
Documenting options for bathroom and laundry reconfiguration cleanly
Goals Achieved
✔️ Clear, cost‑efficient plan with consolidated utilities
✔️ Flexible bed and bath tuning without layout churn
✔️ Durable exterior palette with brick front expression
✔️ Rear‑loaded garage preserving street presence
✔️ Complete, contractor‑ready documentation for a smooth build



AutoCad
Rhendin distills single‑level living into a clear, construction‑ready package. With utilities aligned to cut costs, a bright central core, and options to fine‑tune bedrooms, baths, and laundry, it balances comfort with discipline. Durable materials and a rear garage complete a plan designed for confident bidding, permitting, and build execution.










