3D Design & Rendering
2026 - Locust Grove, KY
2-bed 2-bath mountain-contemporary cabin with refined layout changes and permit-ready plan set.

Overview
Ridgewisp is a compact, two-bedroom mountain-cabin contemporary home designed to feel warm, efficient, and buildable, while still presenting a clean modern profile. The concept focuses on a straightforward single-level living experience with a clear separation between private rooms and shared space, supported by a simple roof form and exterior character that fits a cabin-forward setting. The end goal is a permit-ready plan set that reads intentional, not generic.
Client Type
Ridgewisp was envisioned for homeowners who want a smaller, practical home that still feels elevated through thoughtful proportions, light, and exterior presence. The program fits clients who prefer a clear, no-drama plan set they can price and build from without over-customization. It is ideal for those who value a balanced mix of contemporary lines and mountain-cabin comfort.
Project Scope
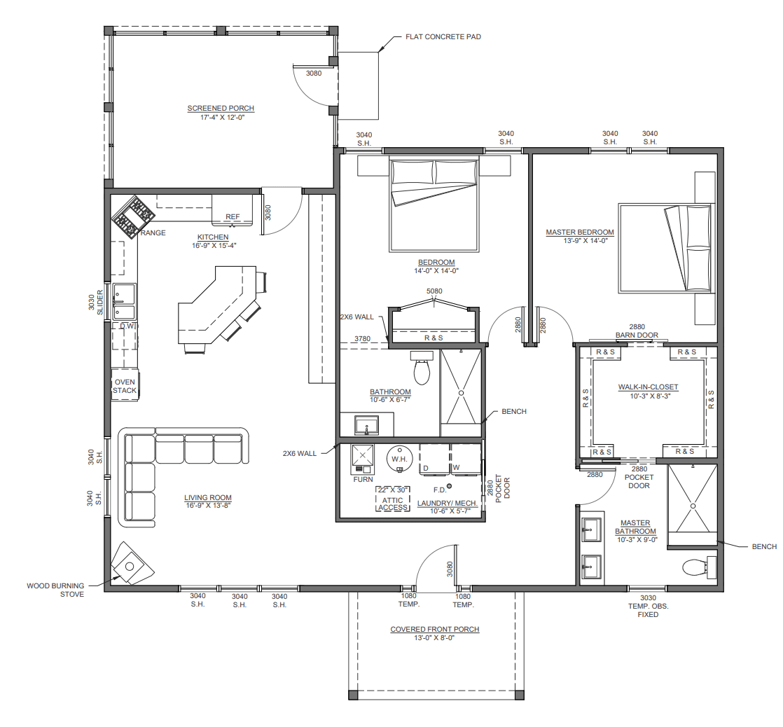
The Ridgewisp project includes a full drafting and documentation package for a 2 bed, 2 bath new build, prioritized to the most decision-driving elements:
• Finalized floor plan development based on provided reference plan plus layout change markups
• Two-bedroom, two-bathroom arrangement with efficient circulation and practical room sizing
• Exterior elevation set aligned to the selected mountain / cabin / contemporary style direction
• Roof and foundation plans coordinated to the finalized footprint and exterior massing
• Permit-ready sheet set delivery packaged for review, QC, and submission workflow
Challenges Addressed
The design had to stay compact while still feeling “complete” and style-coherent, with revisions kept focused and buildable:
• Maintaining a strong mountain-cabin contemporary look without adding unnecessary complexity
• Keeping the plan efficient while still giving both bedrooms and bathrooms comfortable, usable proportions
• Integrating client-requested layout changes without breaking exterior rhythm or roof logic
• Producing a clean, contractor-friendly set that supports smooth QC and final review
• Preventing scope creep so the job stays aligned to the original 2 bed / 2 bath intent
Goals Achieved
Ridgewisp delivers a clear, build-ready direction that stays compact but feels premium in layout and style:
✔️ Two-bedroom, two-bath program organized for everyday ease and privacy
✔️ Style direction locked to mountain / cabin / contemporary for consistent exterior decisions
✔️ Layout change inputs incorporated without sacrificing clarity or constructability
✔️ Full plan-set scope defined for smooth QC, review, and submission readiness
✔️ Documentation approach kept clean and focused for contractor pricing and permitting



AutoCad
Ridgewisp is a compact new-build home that blends mountain, cabin, and contemporary cues into a clean, buildable design. Using a proven 2 bed / 2 bath base plan and targeted layout revisions, the project focuses on efficient circulation, comfortable room proportions, and a cohesive exterior that supports permitting and contractor pricing. With elevations, roof, and foundation coordinated to the finalized footprint, the job is positioned for QC, review, and submission.









