Drafting and Design
2026 - Moorefield, WV
Compact cabin with porches and loft—slope‑smart, permit‑ready, and easy to build.
Table of contents
Overview
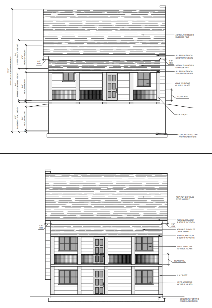
Rookmere is a compact Appalachian cabin balanced for slope and season: a 30'×24' core flanked by full‑width 8' porches front and back, with a walk‑out basement below and a lofted upper level above. A modest 3/12 gable simplifies framing, while Hardie plank cladding and a hearth‑centered living zone deliver durable warmth and everyday clarity.
Client Type
Rookmere suits owners seeking a straightforward, budget‑aware build that handles grade, weather, and weekend crowds. It favors simple structure, clean circulation, and legible drawings so non‑specialist teams can price, permit, and build with confidence.
Project Scope
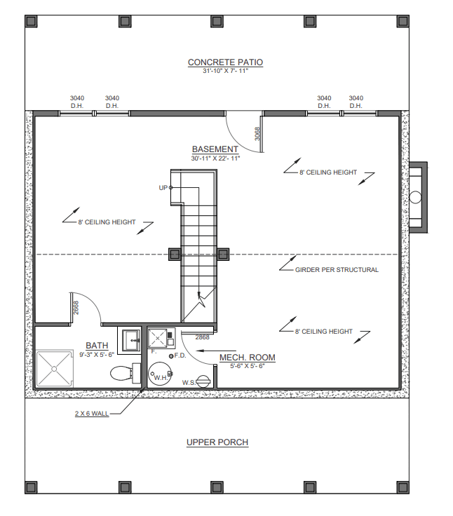
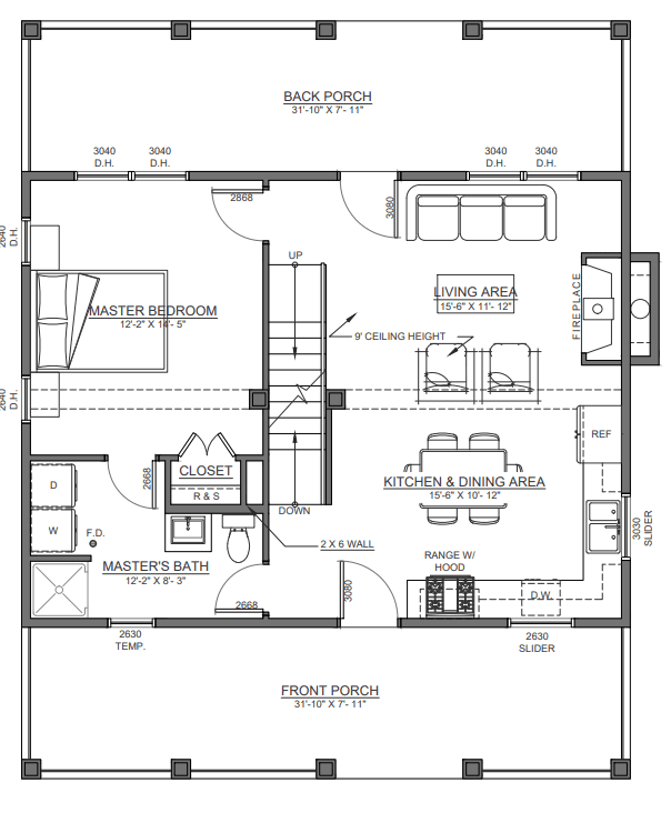
The Rookmere project provides a complete permit set tailored to a sloped site and walk‑out condition. The architectural program includes:
Main level plan aligned front‑to‑back with porches and axial entries
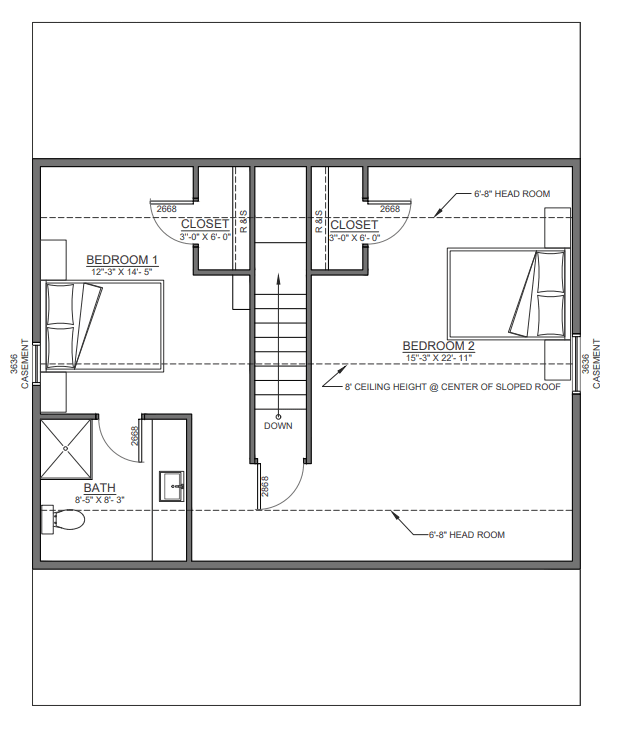
Loft floor with two open bunk areas and one full bath
Unfinished walk‑out basement documented for clarity at permit time
3/12 roof with conventional framing and coordinated sections
Hardie plank exterior and interior stove as focal point
Representational MEP layouts and full sheets: plans, elevations, roof, sections, wall/stair details, door‑window schedules
Challenges Addressed
Managing a steep rear grade with an 8'‑ceiling walk‑out basement
Preserving headroom and usability in a low‑slope (3/12) roof over a loft
Aligning axial entries and circulation through a tight 30'×24' footprint
Packaging MEP intent without over‑engineering for residential review
Goals Achieved
✔️ Clear, buildable documentation for an expedited permit path
✔️ Durable exterior palette with low‑complexity roof geometry
✔️ Loft and stair sections that resolve headroom and structure cleanly
✔️ Representational MEPs that streamline coordination and pricing
✔️ Porch‑to‑porch flow that enhances daily use and seasonal living





AutoCad
Rookmere condenses cabin living into a disciplined 30'×24' plan with full‑width porches, a walk‑out basement, and a loft that’s resolved in section for real usability. A simple 3/12 roof, durable cladding, and clear MEP intent keep bids tight and reviews smooth. The result is a warm, construction‑ready package primed for a confident start on site.










