Drafting and Design
2026 - Lansing, MI
Small 1-bed home with oversized 24x30 attached garage, metal pole-barn shell, narrow-lot ready.
Table of contents
Overview
Rookstone is a compact new-build home designed to deliver simple, resellable living space alongside an oversized attached garage, all under a straightforward post-frame shell. The plan prioritizes efficiency and build speed with an open-concept interior, minimal partitions, and durable metal exterior finishes. On a narrow 50-foot-wide lot, the layout is organized to keep placement and driveway logic practical while staying aligned with local setbacks.
Client Type
Rookstone was envisioned for owners who want a small, functional primary residence with a strong emphasis on practicality, storage capacity, and long-term resale value. The program fits someone who prefers a clean, low-maintenance build using pole-barn style construction, metal siding, and metal roofing, without unnecessary luxury features. It is well suited to buyers who want a straightforward plan they can price quickly, build efficiently, and rely on as a future-proof property for family needs.
Project Scope
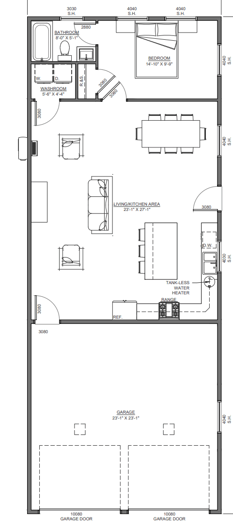
The Rookstone project includes the complete drafting and design of a small new-build residence with an attached, larger-than-average garage, intended to meet local code and zoning requirements for a narrow lot. The architectural program includes:
• Approximately 1,500 sq ft total structure size combining living space and garage under one roofline
• Approximately 800 sq ft living area with an open-concept kitchen, dining, and living zone
• One bedroom and one bathroom arranged for simple circulation and efficient utility routing
• Dedicated furnace and mechanical room for HVAC and water heater placement
• Minimal interior walls to reduce framing complexity and support flexible furnishing
• Attached garage approximately 24' x 30' sized for two vehicles or trucks plus storage use
• Post-frame or pole-barn construction approach with metal siding and metal roofing for durability
• Site placement planning to address a 50-foot-wide lot constraint, including driveway and garage access considerations
• Drafting set prepared for contractor bidding and build quoting, with structural engineering included only if required later
Challenges Addressed
The design had to combine a small livable footprint with a generous garage while remaining compliant and buildable on a narrow lot. Key considerations included:
• Balancing the garage size with lot width constraints to maintain workable setbacks and access
• Keeping the living plan open and efficient without making the home feel undersized
• Locating mechanical systems for serviceability while protecting conditioned space efficiency
• Using simple massing and metal exterior materials to keep construction cost predictable
• Maintaining strong resale utility by avoiding overly customized layouts and preserving practical storage
• Producing a clear plan set that supports quick build quotes and straightforward revisions
Goals Achieved
Rookstone delivers a simple, build-friendly home and garage package designed for real utility:
✔️ Efficient 1-bedroom, 1-bath open-concept living area with minimal interior complexity
✔️ Oversized attached 24' x 30' garage prioritized for storage and vehicle flexibility
✔️ Durable pole-barn construction direction with metal siding and roofing for low maintenance
✔️ Mechanical room planning that keeps utilities organized and accessible
✔️ Narrow-lot aware placement approach supporting driveway and setback compliance
✔️ Resale-focused simplicity that stays practical for future estate and family needs



AutoCad
Rookstone is a practical, resale-minded new build that pairs an efficient 800 sq ft living plan with a large attached 24' x 30' garage under a simple post-frame shell. Metal siding and roofing keep maintenance low, while open-concept planning and minimal walls support flexible use. Designed for a 50-foot-wide lot, the layout stays buildable, code-aware, and easy to price.










