3D Design & Rendering
2026 - Cleveland, MS
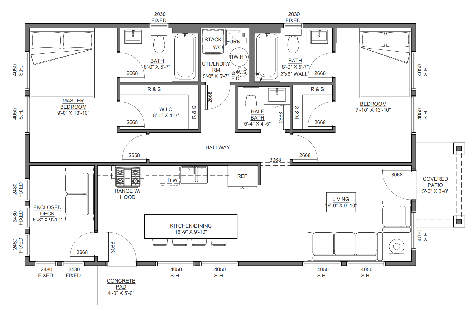
1,000 sf split 2-bed home with two en-suites, hall half bath, island kitchen, and enclosed rear deck.

Overview
Sablecourt is a compact, single-story residence planned to fit a narrow in-town lot while prioritizing privacy, accessibility, and everyday ease. The layout uses a split-bedroom arrangement with each bedroom having its own full bath, anchored by an open-concept living and kitchen core. An enclosed rear deck extends usable space without increasing the home’s complexity, creating a practical, comfortable footprint tailored for long-term livability.
Client Type
Sablecourt was envisioned for individuals who need a simple, efficient home that supports accessible navigation and independent daily routines. The plan is especially suited to residents who benefit from private en-suite bathrooms, minimal travel distances within the home, and a straightforward, low-maintenance layout. It fits homeowners who want comfort-forward features like recessed lighting and an enclosed rear living extension while staying within a modest square-foot range.
Project Scope
The Sablecourt project includes the complete drafting and design of an approximately 1,000 sq. ft. single-story home with an enclosed rear deck, intended to fit a roughly 50' x 130' lot. The architectural program includes:
• Split 2-bedroom layout with 2 en-suite full bathrooms, plus a separate hallway-access half bath for guests
• Open-concept kitchen, dining, and living zone with a central island and front-to-back circulation clarity
• Laundry room positioned between bedrooms as a practical core utility zone
• Enclosed rear deck accessed directly from the kitchen for extended year-round or 3-season use
• Permit-ready sheet scope including floor plan, site plan, roof plan, foundation plan, and a basic lighting layout showing recessed can lighting intent
Challenges Addressed
The design had to deliver comfort and privacy in a compact footprint while staying lot-aware and accessibility-minded. Key considerations included:
• Maintaining true privacy by separating bedroom suites across the plan while keeping circulation simple
• Fitting 2.5 baths into a small home without creating cramped hallways or inefficient plumbing runs
• Keeping the kitchen open and functional while preserving clear access to the enclosed rear deck
• Placing laundry centrally to reduce noise impact and improve day-to-day convenience
• Ensuring the site plan and footprint fit remain practical on a 50' wide lot with typical setback constraints
Goals Achieved
Sablecourt delivers a small-footprint home that feels complete, private, and easy to use:
✔️ Two private bedroom suites with dedicated full baths for independence and long-term comfort
✔️ Guest-friendly half bath located off the hallway to keep private zones private
✔️ Open living and kitchen core with island seating and efficient everyday flow
✔️ Enclosed rear deck connection that adds livability without complicating the main plan
✔️ Permit-ready drafting path with the key plans needed for layout, placement, and build coordination


AutoCad
Sablecourt turns a modest 1,000 sq. ft. footprint into a highly functional, privacy-forward home by pairing a split-bedroom plan with two en-suite bathrooms and a separate guest half bath. An open island kitchen connects directly to an enclosed rear deck for added usable space, while a centered laundry core keeps daily routines efficient. Designed for a narrow lot and accessible living, the plan is positioned for clean permitting and straightforward construction.









