Drafting and Design
2026 - Prescot Valley, AZ
Compact contemporary slab home with high ceilings, open plan, office, and footprint capped near 2,000 sf.

Overview
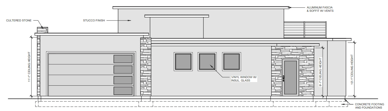
Sablewing is a cost-conscious contemporary slab-home concept designed to deliver high ceilings, strong natural light, and simple construction logic without drifting into expensive structural complexity. The layout is refined from a reference plan and intentionally compressed to stay near a 2,000 sq ft maximum while preserving comfortable room proportions and practical circulation. With no basement and no stairs, the plan focuses on clean, single-level livability that feels open but remains permit-ready and build-efficient.
Client Type
Sablewing was envisioned for homeowners who want a modern, airy home that prioritizes function, affordability, and the ability to upgrade finishes over time. The design supports day-to-day comfort with an open living core, clear separation of private rooms, and a dedicated office, while keeping framing and detailing straightforward. It is ideal for clients who value “spec-style” simplicity, minimal structural surprises, and a plan set aligned to county review requirements.
Project Scope
The Sablewing project includes the complete drafting and refinement of a single-level, slab-foundation new-build home designed to meet Yavapai County residential criteria and remain within a tight overall square footage target. The architectural program includes:
• Single-story slab foundation home with no basement and no stairs to maximize usable area and reduce complexity
• Target overall size kept to approximately 2,000 sq ft maximum including garage and patios
• Open concept planning with high ceilings and large windows for daylight and a contemporary feel
• Master suite sized to a specific target, with a master bedroom at approximately 15' x 15'-6" and master bath maintained as-is
• Secondary bedroom resizing strategy including a bedroom target around 10' x 14'-7" by reallocating space from the garage zone
• Dedicated office sized around 10' x 11'-1"
• Dining area target around 11' x 13"
• Living room target around 15' x 18'-8" with reductions coordinated across adjacent rooms
• Stair removal and repurposing of former stair area into a more open formal dining or entry-adjacent space with lighting intent
• Mudroom-adjacent room expansion by roughly 1' into former stair area to improve function
• Garage retained at original functional scale while supporting overall footprint reduction goals
• Full construction-ready drafting package including floor plan with dimensions, roof plan, and exterior elevations
• Slab and framing layouts drafted for code alignment, with basic MEP layouts included for permitting coordination
• County compliance coordination including wind and snow load data and standard permit submission expectations, with civil grading and drainage excluded
Challenges Addressed
The design had to preserve comfort and openness while shrinking the footprint and avoiding expensive framing moves. Key considerations included:
• Maintaining an open, light-filled feel while reducing the overall plan size to a strict maximum
• Eliminating stairs and rebalancing adjacent spaces without creating awkward circulation or wasted area
• Adjusting bedroom, office, living, and dining dimensions while keeping the layout cohesive and buildable
• Preserving garage utility while borrowing space strategically to meet interior room targets
• Keeping structural detailing simple by avoiding beams, coffered ceilings, and other cost multipliers
• Producing a permit-ready set that aligns with county requirements while clearly separating out civil scope
Goals Achieved
Sablewing delivers a practical contemporary home plan that stays efficient without feeling stripped down:
✔️ Bright, open single-level layout with high ceilings and strong window-driven daylight
✔️ No-stairs, no-basement approach that simplifies construction and improves usable area
✔️ Room-by-room resizing strategy that protects comfort while meeting a tight footprint cap
✔️ Reduced framing complexity aligned with cost-effective build intent
✔️ Full plan set scope including roof, elevations, slab/framing intent, and basic MEP layouts
✔️ County-aligned documentation approach that supports a clean path to permitting



AutoCad
Sablewing refines a reference plan into a streamlined, permit-ready contemporary home that stays near a 2,000 sq ft maximum without sacrificing openness. By removing stairs, simplifying structure, and resizing key rooms with intent, the design keeps construction efficient and upgrade-friendly. A slab foundation, clear roof and elevation scope, and basic MEP layouts support a smooth county submission path.









