Drafting and Design
2026 - Houston, TX
Coastal contemporary 2-story home with view-driven glazing, wrap decks, balconies, and permit-ready plans.

Overview
Seaforge is a scratch-built coastal contemporary home designed for a secluded South Padre Island lot, prioritizing ocean views, natural light, and strong indoor-outdoor flow. The concept organizes the home into clear entertainment and private zones across two stories, with expansive glazing, wraparound decks, and balcony connections that make the exterior living space feel integral, not added on.
Client Type
Seaforge was envisioned for homeowners building a custom beachside residence who want a design-forward layout but still need a clear, permit-ready roadmap from concept through engineering. The program fits clients who value view-driven planning, entertaining spaces, and outdoor connectivity, and who are comfortable collaborating through revision calls to refine layout, elevations, and exterior character before finalizing structural coordination.
Project Scope
The Seaforge project includes full architectural design and drafting for a two-story custom coastal home, coordinated for permit submission and structural engineering. The architectural program includes:
• Two-story custom coastal contemporary home roughly targeted at 1,600–2,200 sq. ft. (expandable based on feasibility)
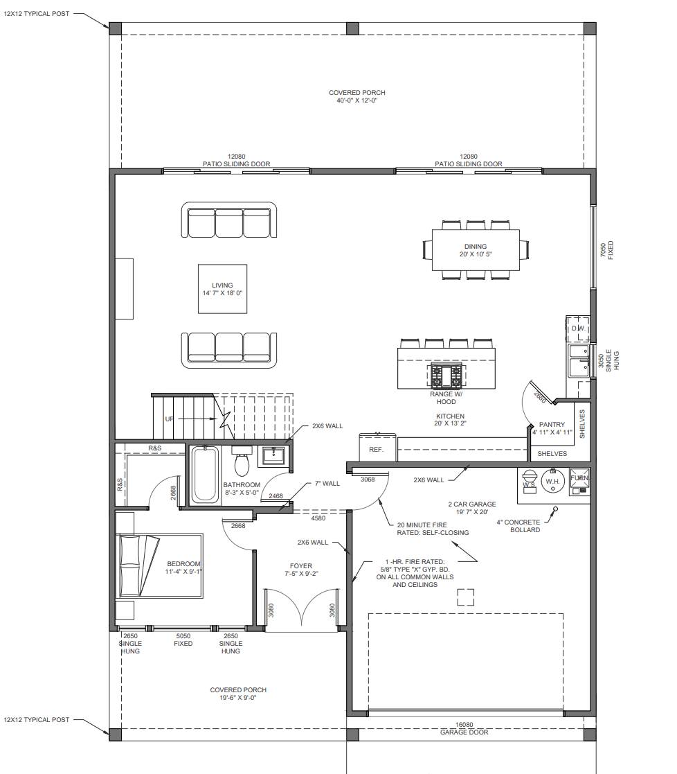
• Lower-level open-concept kitchen, dining, and living with high ceilings and direct access to patio and wraparound porch zones
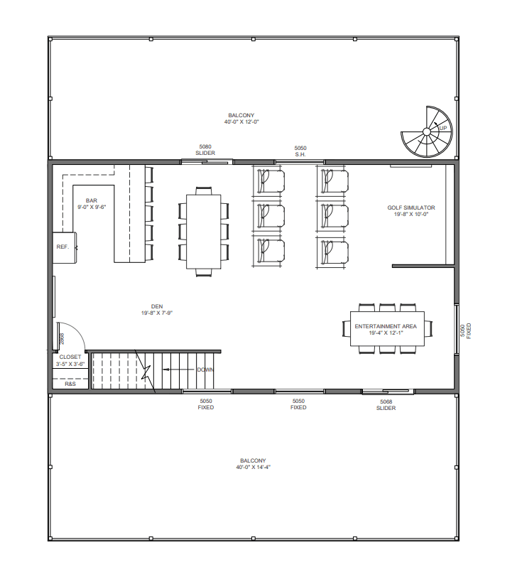
• Dedicated game room or lounge adjacent to living space, with large glazing oriented to the rear yard and pool area potential
• Upper-level private quarters including a primary suite with ocean-facing balcony plus a secondary bedroom or office option
• Full permit-ready construction set including plans, elevations, roof and foundation plans, sections, slab edge details, and MEP layouts (with engineering coordination)
Challenges Addressed
The design had to balance high-glass coastal living with durable, buildable solutions and a site that favors view orientation and outdoor circulation. Key considerations included:
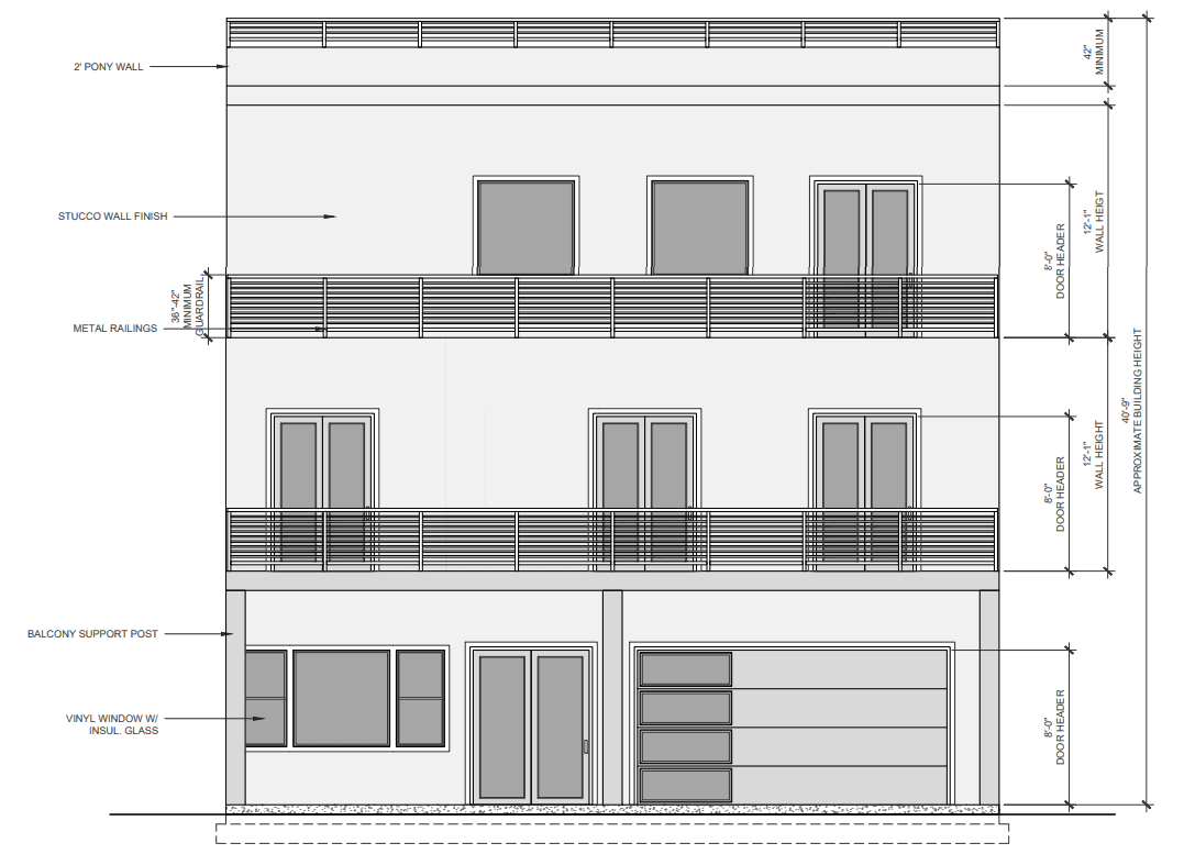
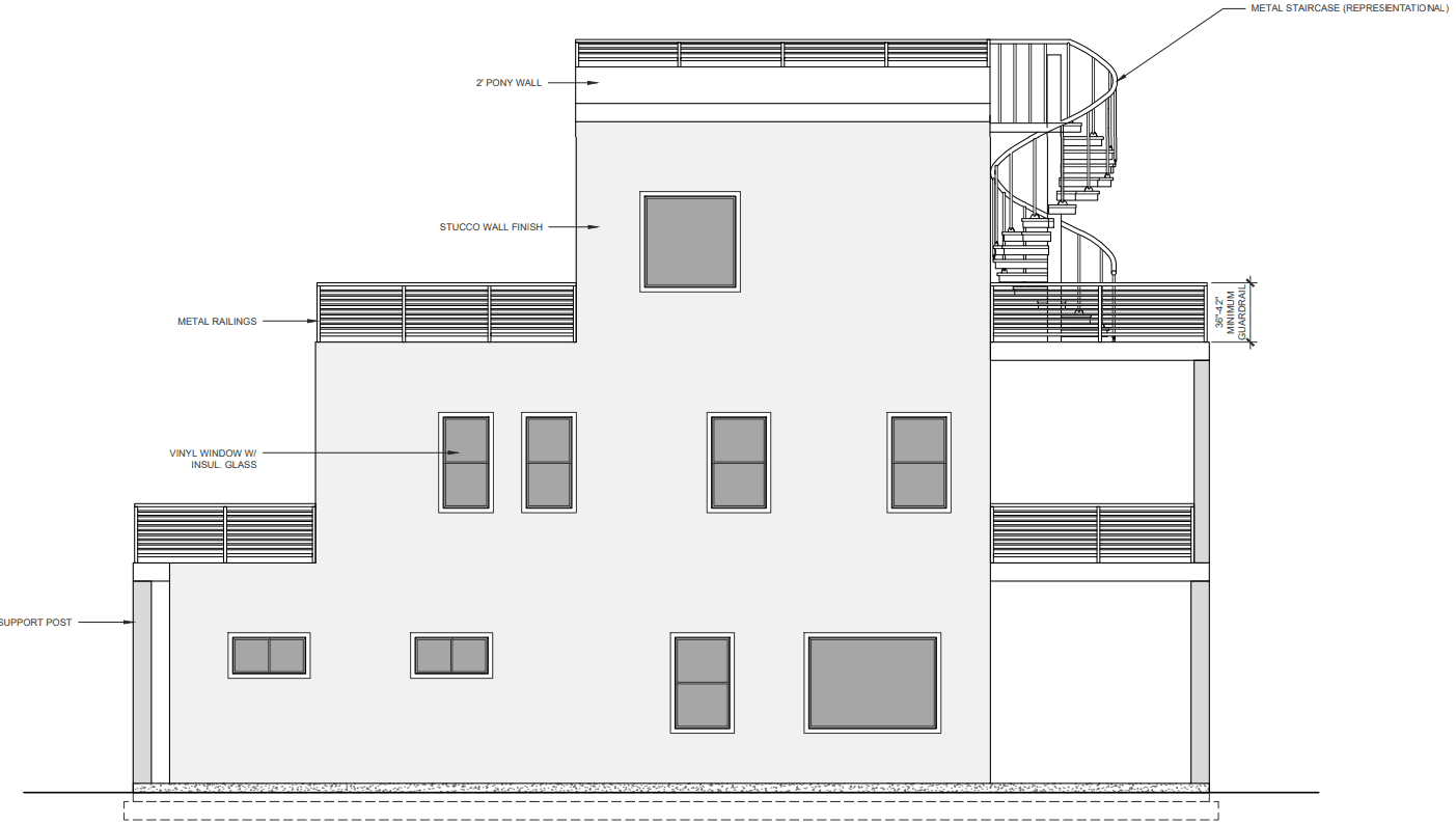
• Maximizing ocean views and daylight while maintaining a coherent, storm-aware window strategy (corner and panoramic glazing)
• Creating strong indoor-outdoor flow with wraparound decks, multiple egress points, and a clear side-to-rear patio connection
• Organizing entertainment vs private zones so the home functions well both day-to-day and for hosting
• Achieving a distinctive coastal roofline presence (shed or gable forms) without overcomplicating the massing
• Keeping the plan set clean and engineering-ready so structural stamping and permitting can proceed without avoidable rework
Goals Achieved
Seaforge establishes a clear, view-first direction for a coastal custom build with strong livability and permit-readiness:
✔️ Two-story zoning that separates entertaining spaces below from private quarters above
✔️ Ocean-oriented balcony and deck strategy that expands usable living space and strengthens the coastal experience
✔️ Open-concept core with high ceilings, strong glazing moments, and natural-light priority
✔️ Exterior circulation plan that connects side and rear patios and supports a future pool zone
✔️ Full construction-document scope defined early, including MEP and a coordinated structural engineering path





AutoCad
Seaforge is a custom coastal contemporary home designed from scratch to capture ocean views, daylight, and outdoor living on a secluded island lot. The plan organizes entertainment spaces on the lower level with direct patio and wraparound deck access, while the upper level holds private quarters anchored by an ocean-facing primary balcony. With a complete permit-ready sheet scope and structural engineering coordination built into the process, the project is positioned for efficient revision cycles and a smooth path to permitting and construction.









