Drafting and Design
2026 - Washington, ME
1,800‑sf cottage with loft—permit‑ready clarity, efficient plans, and smooth path to build.
Table of contents
Overview
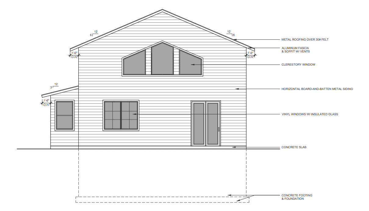
is a compact cottage with a steep‑pitch roof that frames a generous loft over a clear 30'×40' main level. At 1,800 sq ft of drafted space, the plan prioritizes clean structure, efficient circulation, and drawing clarity to accelerate permits and pricing. Elevations and sections resolve the loft‑roof interface for buildable detail.
Client Type
Talsera suits owners who want a right‑sized home with a simple main floor and a flexible loft, and teams who value a crisp set for fast estimates, approvals, and coordination without excess complexity.
Project Scope
The Talsera project delivers a complete, permit‑ready construction set for a main floor plus loft. The architectural program includes:
1,200 sq ft main floor and ~600 sq ft loft within a steep‑pitch roof
Professionalized floor plan, elevations, roof layout, and targeted sections
MEP sheets sized to scope and field coordination needs
Foundation layout reference without detailed foundation engineering
Three revision rounds, with PDFs and CAD available on request
Challenges Addressed
Clarifying loft usability and structure within a steep‑pitch envelope
Resolving elevation language to match roof geometry and interior intent
Providing permit‑ready detail while keeping scope focused and efficient
Packaging drawings for quick contractor pricing and financing steps
Goals Achieved
✔️ Legible, buildable loft strategy with coordinated elevations and sections
✔️ Clean plan set tailored to permitting and rapid bid workflows
✔️ Disciplined scope that excludes nonessential basement detailing
✔️ Delivery format that supports both review and shop‑ready coordination



AutoCad
Talsera condenses a main‑level plan and generous loft into a clear, construction‑ready package. With elevations, roof layout, and sections that resolve the loft interface, it supports confident pricing and a streamlined permit path. Focused MEP sheets and disciplined scope keep coordination tight—poised for fast approvals and a clean start on site.










