Resources / NEWS /
Arqen
Permit Services
2026 - Houston, TX
Arqen
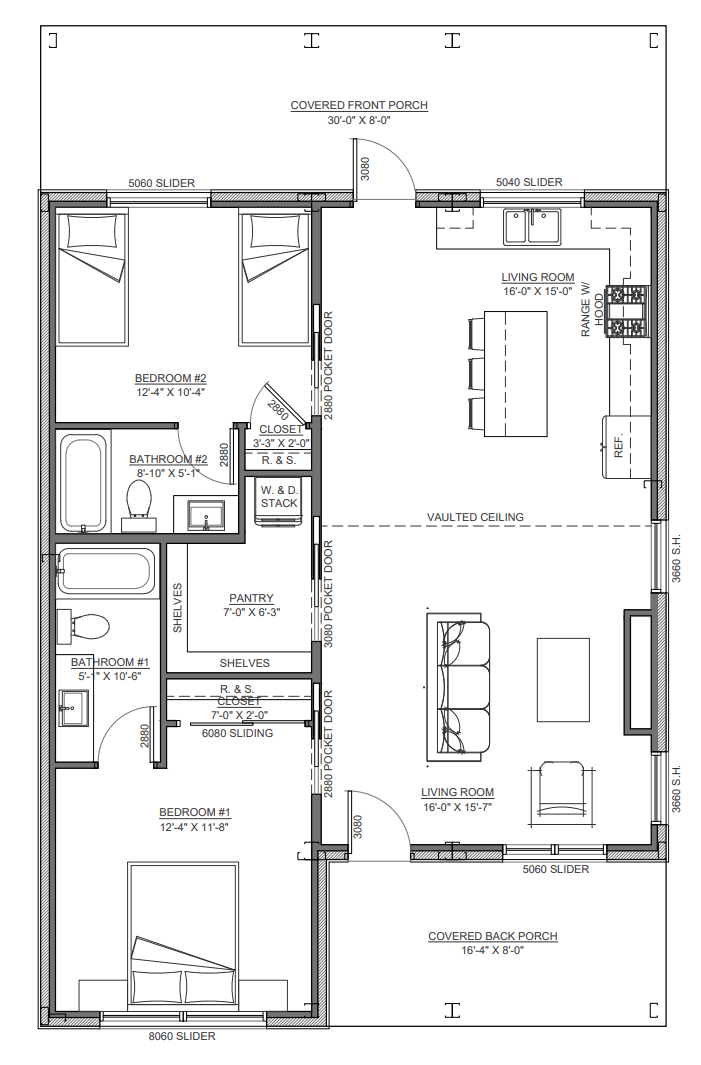
tamped 1,440‑sf cottage prototype—2 bed, 2 bath—built for speed, clarity, and 28‑unit reuse.
Table of contents
Introduction
Software and tools
Table of contents
Table of contents
Overview
Arqen is a 1,440 sq ft cottage prototype designed for repeatable deployment with clear, construction‑ready detail. A clean two‑bed, two‑bath plan anchors an efficient living core, while documentation is tailored for expedited permitting and stamping. The result is a crisp, scalable unit fit for streamlined production across a multi‑home site.
Client Type
Arqen suits developers seeking a repeatable, code‑compliant cottage with fast turnaround. It emphasizes consistency, constructability, and clarity, minimizing RFIs and enabling smooth coordination from bid to build across multiple identical units.
Project Scope
The Arqen project delivers a complete, stamped plan set optimized for replication. The architectural program includes:
Approximately 1,440 sq ft with 2 bedrooms and 2 bathrooms
Open living core sized for everyday function and efficient circulation
Full sheets: floor plans, elevations, roof, sections, details, schedules, and life‑safety notes
Reusable, permit‑ready documentation as a master prototype for 28 units
Expedited production workflow and content integration for schedule certainty
Clarified approach for a vaulted living area relative to roof orientation
Challenges Addressed
Creating a master plan set that duplicates cleanly across 28 cottages
Maintaining code compliance and consistency under an expedited schedule
Resolving vaulted‑ceiling intent given roof peak direction
Reducing field questions through disciplined notes and details
Goals Achieved
✔️ Repeatable cottage prototype with consistent, commercial‑grade documentation
✔️ Permit‑ready set with licensed architectural stamp
✔️ Clear sections, details, and schedules to minimize RFIs
✔️ Expedited delivery without sacrificing accuracy
✔️ Scalable plan logic for multi‑unit deployment









