Resources / NEWS /
Ashren
Permit Services
2026 - Lyndon Station, WI
Ashren
Ranch + loft model home, 1,880 sf—cathedral core, log ties, 10/12 roof, built for Wisconsin snow.
Table of contents
Introduction
Software and tools
Table of contents
Table of contents
Overview
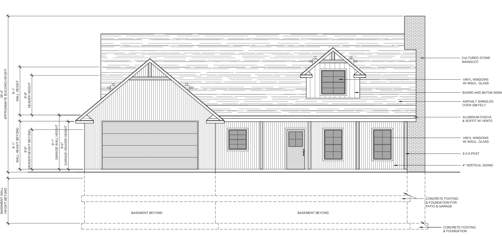
Ashren is a ranch with a partial loft tailored for first‑floor living and repeatable construction across a 23‑lot subdivision. A 32'×50' footprint frames a cathedral great room with exposed log ties and a centered stone fireplace, while an open 14'×24' loft above preserves flexibility. A site‑built 10/12 raftered roof, ridge support from basement to peak, and TJI framing balance snow loads with clean interior volume.
Client Type
Ashren suits empty nesters and retirees prioritizing main‑level ease with room for visiting family. It favors open entertaining, efficient service zones, and a buildable structure that can adapt across future lots without excess complexity.
Project Scope
The Ashren project delivers a complete model‑home set for a Wisconsin subdivision. The architectural program includes:
Approximately 1,880 sq ft: 1,600 first floor plus 280 open loft
32'×50' footprint with 2×6 exterior walls, 2×4 interiors unless mechanical requires more
Great room with cathedral ceiling, fireplace centered on gable end with flanking windows
Two exposed 12–14" diameter log wall ties positioned 8' apart beside front dormer
Master wing with 8' ceilings; great room walls framed to loft floor for continuous roofline
Loft: 14'×24' open, no partitions, future‑flex for office, guest space, or added bath
Site‑built 10/12 pitch raftered roof with inverted valleys at dormer, TJI framing
Ridge support from basement footings to ridge at stair edge, downsizing beam requirements
Unfinished basement with continuous wood beam, TJI first‑floor deck, two egress windows under fireplace wall
22'×22' garage with standard trusses transitioning to raftered tie‑in
Front porch: slab over 48" frost walls, cedar shed roof
Site plan for 352'×870' lot with 130' road setback, 75' side setback
Challenges Addressed
Balancing cathedral volume with practical main‑level ceiling heights and stair clearance
Supporting a 10/12 snow‑load roof with efficient ridge strategy and TJI framing
Maintaining clean exterior roofline while integrating loft, dormer, and garage
Creating a repeatable base plan that adapts across future subdivision builds
Goals Achieved
✔️ First‑floor living core with cathedral great room and exposed rustic elements
✔️ Efficient master wing sized for practicality without wasted area
✔️ Flexible loft ready for future office, guest, or bath conversion
✔️ Site‑built roof logic with ridge support that cuts beam cost and complexity
✔️ Clean, repeatable plan suited to 23‑lot phased development










