Resources / NEWS /
Auralith
Permit Services
2025 - Oakwood, TX
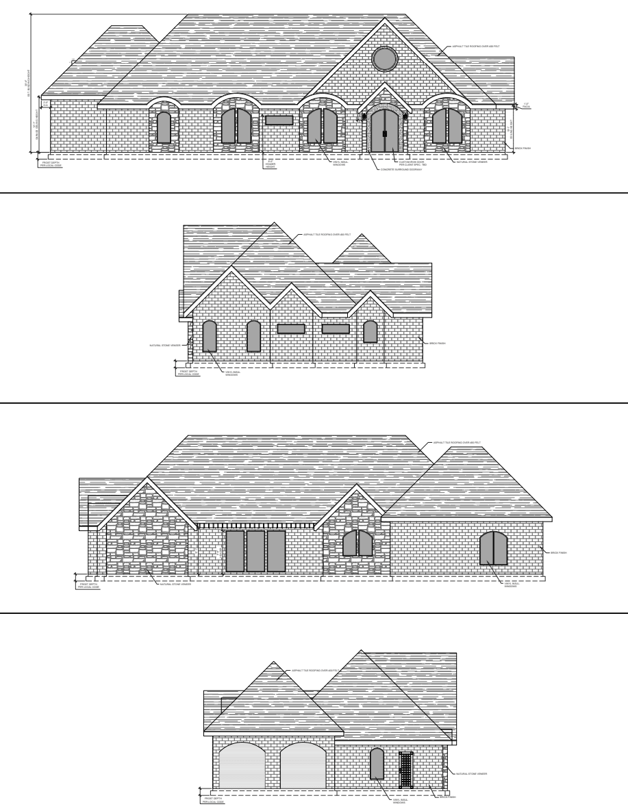
Auralith
Single-story home with vaulted open living, butler’s pantry, office, and covered patio flow.
Table of contents
Introduction
Software and tools
Table of contents
Table of contents
Overview
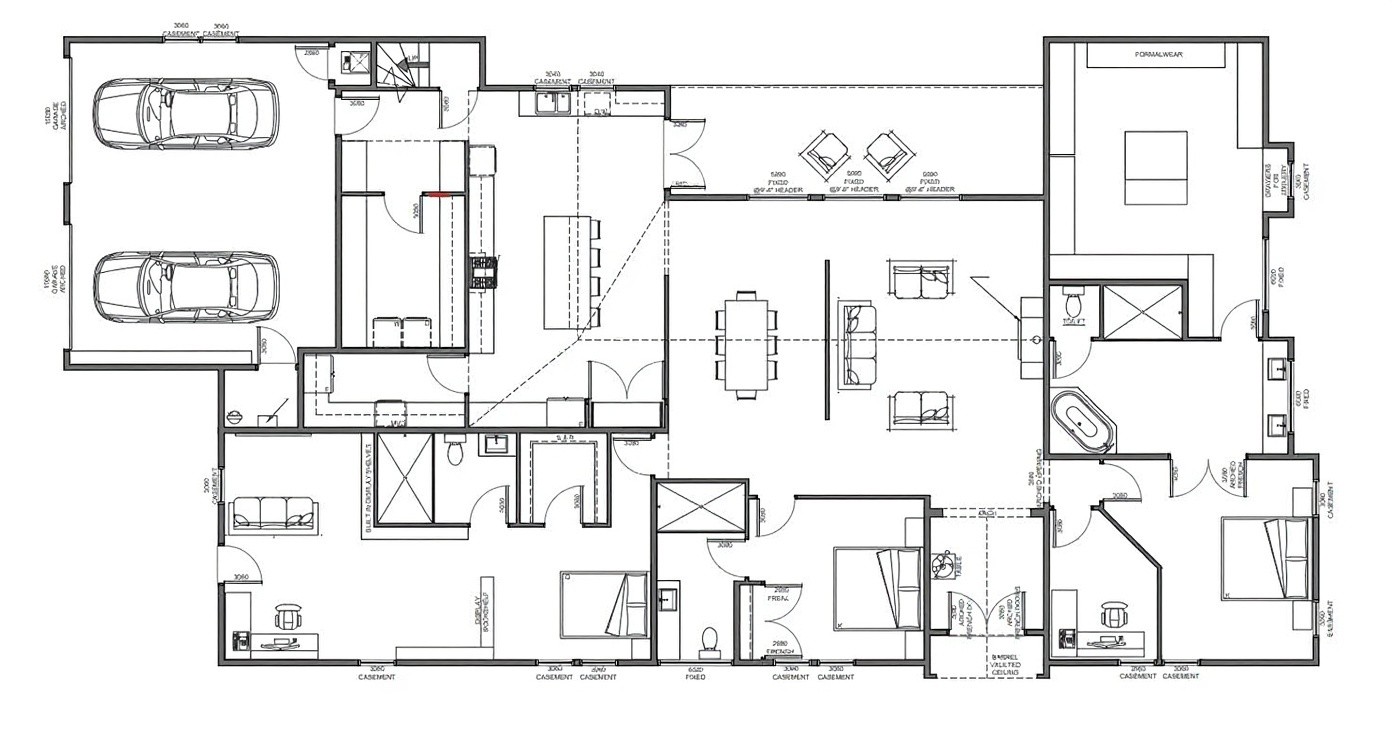
Auralith is a new single-story residence designed around a bright, open core and an easy indoor-outdoor lifestyle. The plan centers on an open-concept living, dining, and kitchen space with vaulted ceilings, anchored by a large kitchen island, walk-in pantry, and a connected butler’s pantry for extra prep and storage. A generous covered patio extends the main living areas outdoors, supporting everyday comfort and relaxed entertaining.
Client Type
Auralith was envisioned for individuals or families who want a highly functional, single-level home with strong day-to-day flow, flexible work space, and comfortable private suites. The layout supports both routine living and hosting, with a dedicated office, well-separated bedrooms, and storage-forward planning throughout.
Project Scope
The Auralith project includes the complete design of a single-story single-family home focused on comfort, circulation, and indoor-outdoor connection. The architectural program includes:
Single-story residence with open and functional layout
Three bedrooms plus a dedicated office
Three and a half bathrooms
Open living, dining, and kitchen area with vaulted ceilings
Kitchen with large island, walk-in pantry, and connected butler’s pantry
Spacious covered patio accessible from the main living and dining areas
Primary suite with large walk-in closet
Primary bath with soaking tub and walk-in shower
2-car garage
Laundry room with direct access to the kitchen
Separate mechanical and storage area
Thoughtful circulation and ample storage to support everyday living
Challenges Addressed
The design had to balance openness with practicality while keeping everything efficient on one level. Key considerations included:
Keeping the open-concept core spacious without losing usable storage
Creating clear circulation between garage, laundry, kitchen, and living areas
Maintaining privacy for bedrooms while supporting an easy guest flow
Designing strong indoor-outdoor access without disrupting the main layout
Integrating flexible office space without it feeling like an afterthought
Goals Achieved
Auralith delivers a clean, comfortable single-level home that feels open, organized, and easy to live in:
✔️ Bright, vaulted great-room core for everyday living and entertaining
✔️ Strong indoor-outdoor connection through a large covered patio
✔️ Storage-forward kitchen planning with walk-in pantry and butler’s pantry
✔️ Practical service circulation from garage to laundry to kitchen
✔️ Private primary retreat with spa-style bath elements
✔️ Flexible office space to support work, study, or hobbies









