Resources / NEWS /
Brassward
Permit Services
2026 - Townsend, GA
Brassward
Permit-ready 30x60 barndo plan with loft, office, 2 beds, 2 baths, and minimal garage bay.

Table of contents
Introduction
Software and tools
Table of contents
Table of contents
Overview
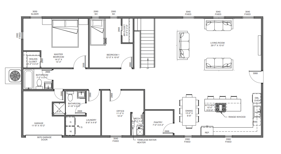
Brassward is a permit-ready barndominium interior build-out designed to transform an existing 30' x 60' metal shell into a clean, highly functional live-work residence. The concept prioritizes a generous front open-concept zone for daily living and hosting, while concentrating private rooms toward the rear for separation and quiet. A compact roll-up garage bay and a flexible loft level add utility without compromising the main-floor livability.
Client Type
Brassward was envisioned for owners who want an efficient, straightforward barndominium layout inside a pre-built structure, with enough flexibility to adapt room sizes as needed during drafting. The design supports a practical lifestyle that blends home, work, and storage needs, with an office on the main level and a loft for overflow use. It is well suited to buyers who need clear construction documents for financing, builder coordination, and a smooth approval process.
Project Scope
The Brassward project includes the complete drafting and space planning of a barndominium build-out within an existing 30' x 60' metal structure, including a main floor and a bonus loft. The architectural program includes:
• Existing shell utilization within a 30' x 60' metal building footprint
• Wood-framed interior build-out using 2x6 framing
• Main-floor layout of approximately 1,900 sq. ft. with an open-concept kitchen, dining, and living area at the front
• Two main-floor bedrooms, with the primary suite located at the back right corner
• One dedicated main-floor office space
• Two bathrooms total, including an ensuite bath in the primary suite and one shared bathroom
• Compact garage area with an 8-foot roll-up door located at the back left corner to preserve living area
• Flexibility in closet sizing and internal dimensions to accommodate the primary ensuite bathroom efficiently
• Bonus loft area of approximately 900 sq. ft., planned as a 30' x 30' zone positioned above the rear bedroom and office area
• Loft intended for storage or flexible use, with reduced headroom acceptable and a target ceiling height around 8 feet
• Permit-ready plan set suitable for bank financing and builder coordination, including loft integration where feasible
Challenges Addressed
The design had to work within the fixed constraints of an existing shell while achieving a comfortable, code-aligned layout and a loft concept that may depend on builder verification. Key considerations included:
• Organizing a clear, functional plan while respecting the existing door placement on the 30-foot side
• Balancing living space size with the request for only minimal garage square footage
• Fitting an ensuite bathroom into the primary suite while keeping storage practical and proportional
• Locating the loft above the rear zone to preserve open volume where desired and keep structure efficient
• Planning a loft with limited headroom that still feels intentional and usable for storage or flex needs
• Producing documents that support financing timelines and reduce back-and-forth during builder coordination
• Keeping the plan adaptable to minor dimensional changes without disrupting the overall layout logic
Goals Achieved
Brassward delivers a clean, finance-ready barndominium plan that maximizes livability inside an existing structure:
✔️ Strong open-concept front living zone paired with a quieter rear private wing
✔️ Two-bedroom program with dedicated office and a practical two-bath layout
✔️ Primary suite placement and flexibility to ensure the ensuite bath can be accommodated
✔️ Minimal garage footprint with a rear roll-up door to protect main living area square footage
✔️ Loft concept positioned for efficient structure and flexible storage or bonus use
✔️ Permit-ready documentation approach suited to bank review and builder execution









