Resources / NEWS /
Brisastone
Permit Services
2025 - Miami, FL
Brisastone
Elegant Caribbean estate with iron balconies, open living, and resort-style outdoor space.
Table of contents
Introduction
Software and tools
Table of contents
Table of contents
Overview
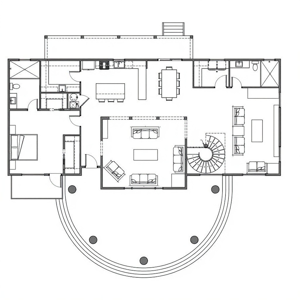
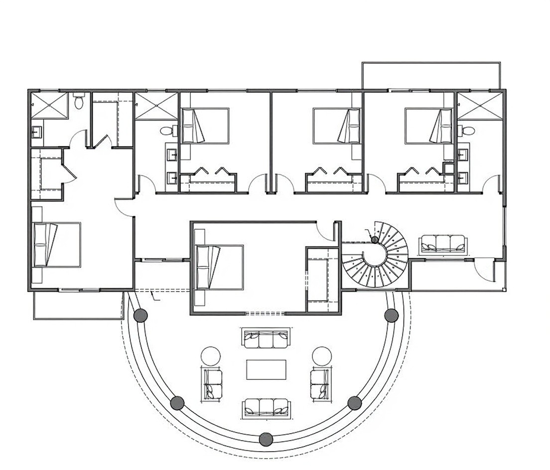
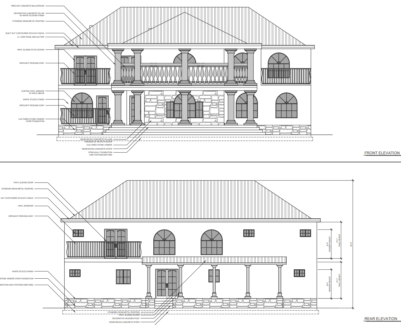
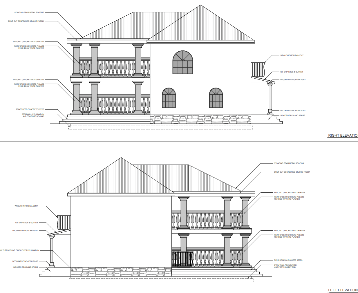
Brisastone is a custom Caribbean residence that blends timeless elegance with coastal luxury through a white stucco exterior, cultured stone accents, wrought iron balconies, and a durable standing seam metal roof. At 4,248 square feet, plus 1,928 square feet of covered outdoor living, the design emphasizes a seamless indoor-outdoor rhythm. Arched windows and wide sliding doors pull in natural light and frame expansive balcony views, reinforcing the home’s breezy island character.
Client Type
Brisastone was envisioned for individuals or families seeking a refined island retreat that feels equally suited to everyday comfort and high-end hosting. The home supports relaxed daily living with a private primary suite and open central gathering spaces, while layered outdoor areas and view-oriented balconies create an elevated entertaining experience.
Project Scope
The Brisastone project includes the complete design of a two-level residence centered on indoor-outdoor living, durable coastal materials, and resort-style amenities. The architectural program includes:
4,248 sq ft conditioned residence plus 1,928 sq ft of covered outdoor space
Open-concept living room, dining area, and gourmet kitchen
Butler’s pantry for added function and hosting support
Primary suite on the main floor with walk-in closet and spa-like en-suite
Upper level with a secondary master suite and additional bedrooms
Private upstairs sitting area opening to expansive balconies
Arched windows and large sliding doors for abundant daylight and airflow
Planned pool and pool house with covered patios and shaded balcony retreats
Exterior palette of white stucco, cultured stone, and wrought iron detailing
Standing seam metal roof for longevity and weather resilience
Challenges Addressed
The design had to balance classic architectural expression with a modern coastal lifestyle. Key considerations included:
Maximizing natural light while maintaining comfort and privacy
Creating strong indoor-outdoor flow without losing a cohesive interior layout
Using elegant façade elements without making the exterior feel overworked
Planning covered outdoor zones that stay usable in sun and coastal weather
Organizing multiple bedroom suites and balconies without disrupting circulation
Goals Achieved
Brisastone delivers a polished Caribbean escape designed for both quiet retreat and effortless entertaining:
✔️ Elegant coastal architecture with durable, island-suited materials
✔️ Open main-floor living core that supports hosting and daily ease
✔️ Private suite planning, including a main-floor primary retreat
✔️ View-driven balconies and light-filled interiors with arched glazing
✔️ Resort-style outdoor living with covered patios, pool, and pool house
✔️ Strong indoor-outdoor connection that feels natural, not forced











