Resources / NEWS /
Carin
Permit Services
2026 - Autsin
Carin
Courtyard-centered 3-level container home with dual stair access, suites, patios, and fountain core.
Table of contents
Introduction
Software and tools
Table of contents
Table of contents
Overview
Cairn is a compact, three-level container residence organized around a protected open-air courtyard with a central fountain. Four modular volumes frame the plan, creating a bold, industrial silhouette while preserving a calm interior experience through clear zoning and simple circulation. Twin exterior stairs rise from the courtyard, turning the center void into the home’s social heart and a light well for the surrounding living spaces.
Client Type
Cairn was envisioned for individuals or small households drawn to modern, modular living with a strong preference for efficient space planning and low-fuss durability. The layout supports a straightforward daily routine, with separated private sleeping quarters, elevated kitchen and dining levels for gathering, and a courtyard-focused outdoor experience that feels intentional rather than leftover.
Project Scope
The Cairn project includes the complete design of a three-level modular container residence focused on compact livability, outdoor amenity, and clear separation of uses. The architectural program includes:
• Central open-air courtyard with fountain as the organizing element
• Ground-level drive and drop-off with adjacent garage volume (approx. 420 SF)
• Two private bedroom suites on the second level, each with a dedicated bathroom and storage
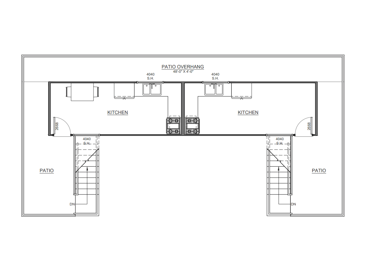
• Third-level kitchen and dining spaces arranged as mirrored, efficient galley-style layouts
• Dual exterior stair access from the courtyard to upper levels for simple circulation
• Elevated patios and overhangs to extend usable outdoor space on upper floors
• Durable, minimal exterior expression aligned with modular construction constraints
Challenges Addressed
The design had to achieve comfort and function within tight modular footprints while keeping the outdoor courtyard as a true destination space. Key considerations included:
• Maximizing usable area within container-based room proportions
• Keeping bedrooms private while maintaining direct, intuitive access from the courtyard
• Creating a kitchen and dining level that feels open despite a narrow plan depth
• Balancing the visual weight of stacked containers with a centered outdoor void
• Integrating drive and drop-off and garage needs without dominating the experience
Goals Achieved
Cairn delivers a distinct, courtyard-centered modular home that prioritizes function and clarity:
✔️ Strong container-modern identity with a clean, durable exterior expression
✔️ Courtyard-and-fountain core that adds character and outdoor livability
✔️ Private bedroom suites separated from communal kitchen and dining spaces
✔️ Simple circulation via mirrored stair access and straightforward zoning
✔️ Compact footprint that still includes garage, patios, and outdoor amenity
✔️ A layout that feels intentional, not improvised, despite modular constraints










