Resources / NEWS /
Conistra
Permit Services
2026 - Gaffney, SC
Conistra
Renaissance home with conical tower, dormered attic, and permit‑ready, buildable detailing.
Table of contents
Introduction
Software and tools
Table of contents
Table of contents
Overview
Conistra is a Renaissance‑inspired residence defined by a round tower with a conical roof, stucco cladding, and a gabled body with dormers. A main level plus finished attic creates a compact, dignified profile, while disciplined detailing, clear sections, and practical spans deliver a graceful home ready for permit and construction.
Client Type
Conistra suits households seeking classic presence with modern practicality. It favors simple, buildable geometry, light‑catching dormers, and a right‑sized plan that balances daily routine with a touch of ceremony at the towered entry.
Project Scope
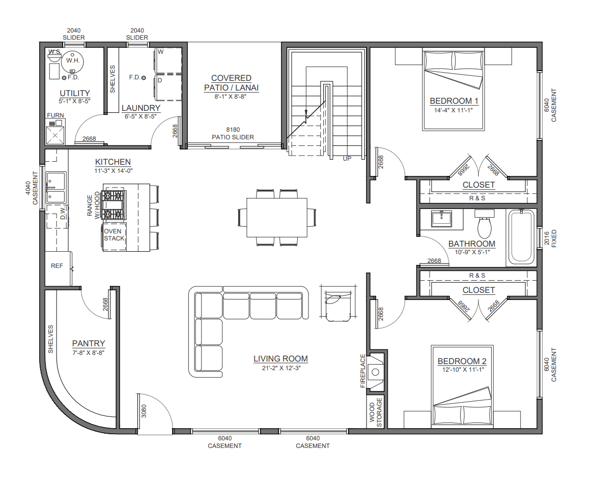
The Conistra project delivers a complete, permit‑ready set for a two‑level home. The architectural program includes:
Main floor plus attic within gabled roof, dormers for light and egress
Three bedrooms total: two on main, one in attic
Two full bathrooms and efficient circulation
Slab‑on‑grade foundation, 9' interior walls, 6'8" headers
Stucco exterior, conical‑roof tower, shingle gables
Full sheets: floor plans, dimensions, elevations, roof, slab edge, sections, and MEPs
Structural engineering to follow for stamping
Challenges Addressed
Integrating a circular tower into a gabled volume without structural conflicts
Achieving attic egress and comfort with dormer placement and roof geometry
Preserving classical proportions while maintaining modern code and clear spans
Packaging drawings for smooth review and straightforward bidding
Goals Achieved
✔️ Iconic tower gesture balanced by a calm, buildable gabled massing
✔️ Daylit attic bedroom with dormers sized for egress and headroom
✔️ Efficient two‑bath layout and practical slab‑on‑grade detailing
✔️ Complete documentation that bridges design intent and structural follow‑on
✔️ Durable exterior expression with clear, code‑ready notes











