Resources / NEWS /
Gildcrest
Permit Services
2026 - Houston, TX
Gildcrest
High-end 3-structure homestead with metal-frame home, garage, and heavy-duty fabrication shop.
Table of contents
Introduction
Software and tools
Table of contents
Table of contents
Overview
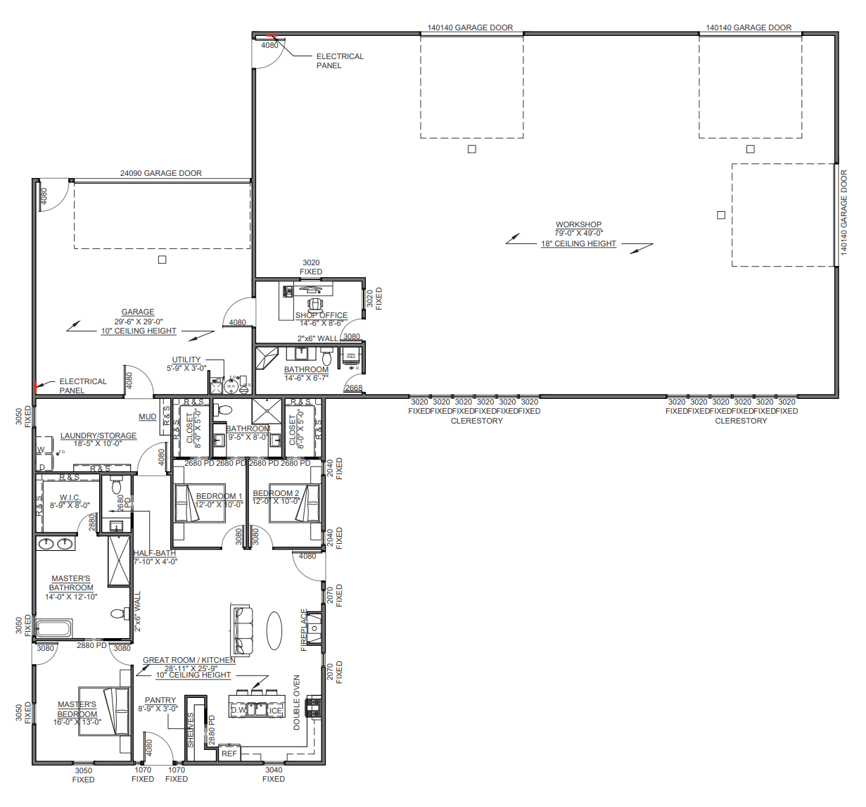
Gildcrest is a large-format, modern homestead compound designed as three coordinated structures on open acreage: a primary residence, an attached garage, and a heavy-duty detached workshop. The concept pairs clean, efficient planning with a rugged, performance-first build approach, using a metal-framed shell and a continuous slab strategy to support long-term durability. The layout emphasizes straightforward circulation, abundant daylight through fixed glazing, and practical exterior access for day-to-day work and property life.
Client Type
Gildcrest was envisioned for hands-on owners who want a premium, high-function property that supports both comfortable living and serious fabrication or trade work on-site. The design fits a household that values speed of build, structural resilience, and practical detailing, while still wanting a polished, well-composed plan set that feels intentional. It is ideal for people who prefer clear options, efficient spaces, and a compound that works as hard as it looks.
Project Scope
The Gildcrest project includes the complete design of a three-structure residential compound centered on durability, code compliance, and high-utility planning. The architectural program includes:
• Primary residence planned at roughly 50 ft x 40 ft, targeting about 2,000 sq ft of interior living area after interior framing
• Attached garage planned at roughly 30 ft x 40 ft for vehicles and general storage
• Detached workshop planned at roughly 50 ft x 80 ft, with an alternate option of 40 ft x 80 ft depending on final alignment
• Full bathroom and shower provisions within the workshop, plus a dedicated washroom area
• Fixed, non-operable window strategy focused on daylighting, wall symmetry, and a clean exterior expression
• Mix of swing doors and pocket doors to conserve space and keep circulation efficient
• Exterior egress strategy that places an exit door on each exterior wall face for access, safety, and usability
• Slab and foundation approach targeting a minimum 5.5 inch concrete slab designed to accommodate anchoring needs and heavy equipment loads
• Power planning that supports higher-demand shop use, including a separate electrical feed strategy such as a second panel or junction point
• Covered connection element between garage and shop via an awning intended for protection and drainage slope coordination
• Permit-ready plan set coordination intended to support jurisdictional review and streamlined approvals
Challenges Addressed
The design had to balance residential comfort with industrial-grade shop requirements while keeping the overall compound cohesive and buildable. Key considerations included:
• Achieving a true target living area while accounting for interior framing offsets within a metal-framed shell
• Providing abundant natural light using fixed glazing without compromising planning efficiency
• Coordinating multiple structures on one slab strategy while maintaining clean transitions between uses
• Designing the workshop to support heavy fabrication equipment in the 12,000 to 20,000 lb range
• Planning utility zones for plumbing and electrical in a way that remains flexible as details finalize
• Integrating a covered garage-to-shop connection without creating awkward rooflines or drainage conflicts
• Supporting high outlet counts and future-proof electrical capacity without cluttering the layout
Goals Achieved
Gildcrest delivers a refined, high-performance compound that is built around real-world use:
✔️ Clear three-structure program that supports both daily living and serious shop work
✔️ Efficient residential layout with space-saving door strategy and daylight-first window placement
✔️ Heavy-duty workshop planning with dedicated wash and bath functions
✔️ Slab-forward durability approach aligned with wind resilience and long-term performance
✔️ Practical access planning with strong exterior egress and straightforward circulation
✔️ Cohesive site-ready concept that can be carried into a clean, permit-ready plan set










