Resources / NEWS /
Hearthlin
Permit Services
2026 - Sand Springs, OK
Hearthlin
Steel‑clad warmth in a compact plan—vaulted, porch‑forward, efficient, and easy to build.
Table of contents
Introduction
Software and tools
Table of contents
Table of contents
Overview
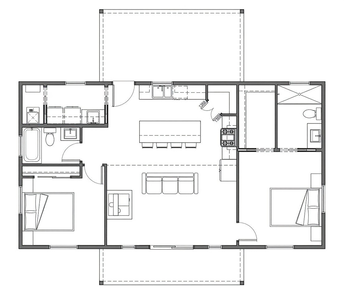
Hearthlin is a compact, rural barndominium hybrid that marries a steel-clad exterior with a warm, stick‑framed interior. A single‑story plan centers everyday living around a hearth‑focused great room, while a vaulted front ceiling with transom windows draws in light. A 20'×10' covered back porch extends living outdoors, and the simple, efficient layout keeps construction practical and clear.
Client Type
Hearthlin suits those seeking a modest, low‑maintenance home with country practicality: right‑sized rooms, easy circulation, and straightforward detailing for quick buildability. It supports quiet daily routines with flexible comfort and just enough space for two without excess.
Project Scope
The Hearthlin project delivers a permit‑free, single‑level residence with durable metal skin and traditionally framed interiors. The architectural program includes:
Open living room with a traditional wood‑burning stove as focal point
2 bedrooms and 2 bathrooms in a simple, efficient split
Dedicated laundry and clear utility routing
Vaulted front ceiling with transom windows for light and presence
20'×10' covered back porch for sheltered outdoor use
No attached garage, with separate garage already on site
Steel siding and metal roof over wood framing, insulated and finished in drywall
Tankless water heater located in mechanical room
Electrical plan emphasizing ample outlets for flexible furnishing and use
Challenges Addressed
Achieving warmth and privacy within a compact footprint
Balancing metal‑clad durability with a comfortable interior feel
Simplifying the plan for rural construction without formal permitting
Integrating plentiful power access without visual clutter
Goals Achieved
✔️ Efficient, single‑story layout optimized for two occupants
✔️ Durable exterior with straightforward, cost‑conscious construction
✔️ Light‑rich living space enhanced by vaults and transoms
✔️ Outdoor connection via generous covered porch
✔️ Clear MEP strategy, including tankless hot water and robust outlet plan
✔️ Clean documentation path for contractor hand‑off










