Resources / NEWS /
Orentha
Permit Services
2026 - Charleston, SC
Orentha
1,850‑sf plan reworked for a tight lot—side‑shifted master, full redraw, permit‑ready, plus 12×20 garage.
Table of contents
Introduction
Software and tools
Table of contents
Table of contents
Overview
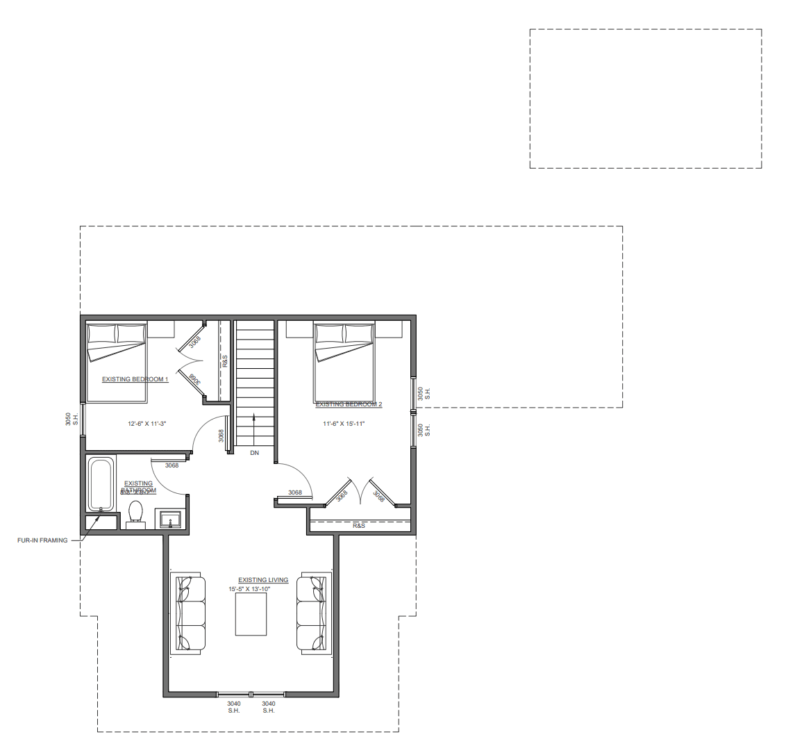
Orentha is a refined re‑issue of a proven plan, rebuilt from scratch to suit a tricky lot. The master suite shifts from rear to side elevation, preserving area and flow while improving setbacks and structure. Clean elevations, coordinated roof and slab, and a focused site plan create a crisp, permit‑ready package.
Client Type
Orentha suits owners updating a repeat build for a new lot shape. It favors familiar livability with smarter geometry, clear circulation, and documentation tuned for fast review and predictable construction.
Project Scope
The Orentha project delivers a complete construction set with targeted modifications:
Approx. 1,850 sq ft main residence, full redraw for code consistency
Master suite wing relocated from rear to side with continuous load paths
Updated circulation, egress, slab and roof integrations, and boundary offsets
Full sheets: floor plans, dimensions, elevations, roof, foundation, sections, D/W schedules, site plan from plat
Detached 12'×20' garage add‑on as a light drafting component
Client to handle engineering; no external stamp included
Challenges Addressed
Re‑attaching a primary wing without disrupting structural hierarchy
Maintaining room sizes and flow during side‑shift reconfiguration
Aligning slab, roof, and setbacks to fit an irregular lot
Preserving prototype familiarity while upgrading documentation quality
Goals Achieved
✔️ Side‑relocated master suite with clean structural marriage
✔️ Floor area and circulation maintained with better lot fit
✔️ Code‑ready drawings suitable for submittal and builder pricing
✔️ Clear site coordination using client plat and tolerances
✔️ Optional detached garage documented for simple review











